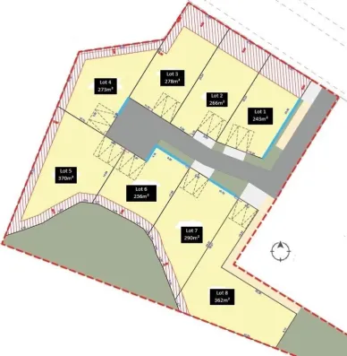
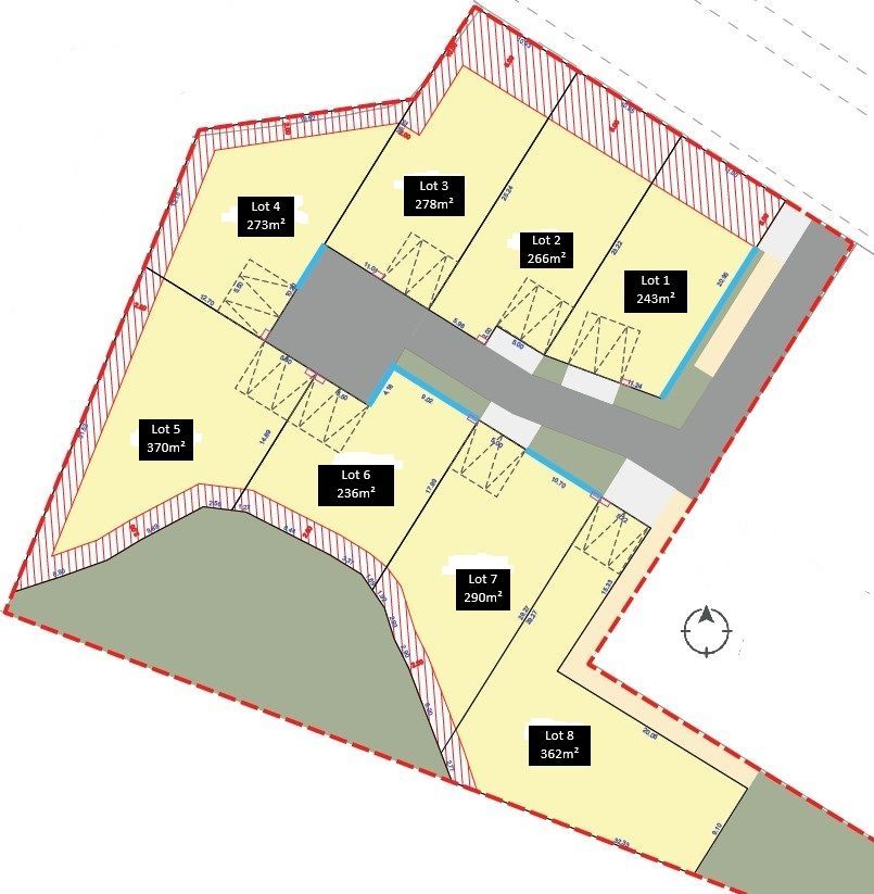
Terrain à bâtir de 273 m² à SAINT-BARTHELEMY-D'ANJOU (49) Proposé par Maisons SOCOREN
En savoir plus
sur ce terrain
Terrain à vendre Saint-Barthélemy-d'Anjou (49124)
122 850 €MAISONS SOCOREN vous propose de construire :
- Maison sur-mesure avec plan personnalisé
- De 1 à 4 chambres ou d'avantage
- Mode de chauffage au choix
- Grands choix d'équipements et de prestations
- Matériaux de qualité selon les normes en vigueur
- Accompagnement dans l’acquisition du terrain
- Construction conforme à la nouvelle RE 2020
Rendez-vous en agence ou à domicile
Me BOULAY Emilie
Prix : 122850 €.
Sur ce terrain de 273 m² à SAINT-BARTHELEMY-D'ANJOU, MAISONS SOCOREN vous propose de réaliser votre projet de construction de maison individuelle.
MAISONS SOCOREN propose de construire votre maison neuve avec toutes les prestations suivantes :
- Plan sur-mesure et personnalisé de 2 à 4 chambres
- Mode de chauffage au choix
- Grands choix d'équipements et de prestations
- Matériaux de qualité selon les normes en vigueur
- Accompagnement dans le choix et l’acquisition du terrain
- Construction conforme à la nouvelle RE 2020
Demandez une étude gratuite et personnalisée de votre projet de construction sur ce terrain !
Terrain hors frais de notaires. Offre sous réserve de disponibilité par notre partenaire foncier. Photo(s) non contractuelle(s).
terrain viabilisé
Cette annonce a été créée et diffusée avec le logiciel VITAHOME.
- 273m²
Réf. TEEB048105F5AD254E
Informations sur le terrain
MAISONS SOCOREN vous propose de construire :
- Maison sur-mesure avec plan personnalisé
- De 1 à 4 chambres ou d'avantage
- Mode de chauffage au choix
- Grands choix d'équipements et de prestations
- Matériaux de qualité selon les normes en vigueur
- Accompagnement dans l’acquisition du terrain
- Construction conforme à la nouvelle RE 2020
Rendez-vous en agence ou à domicile
Me BOULAY Emilie
Surface : 273m²
Commune : 49124 Saint-Barthélemy-d'Anjou
Département : MAINE-ET-LOIRE (49)

