Modèle de maison ALIX T6 Proposé par Maisons SOCOREN
Prix sur consultation
Recevez une étude personnalisée
de cette maison
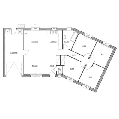
- 86 m²
- 4 chambres
Réf. alix-t6
Caractéristiques du modèle ALIX T6
| ALIX T6-4CH85 | 5 Pièces | 4 chambres | 85.84 m² | Prix NC |

