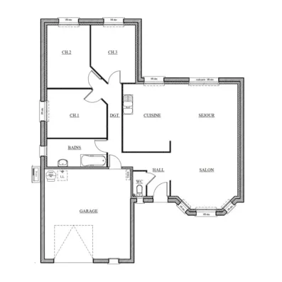
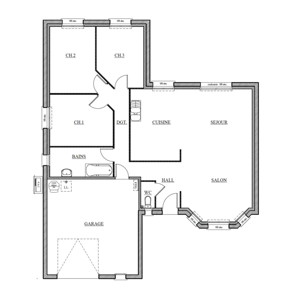
Modèle de maison ALBAN T5 Proposé par Maisons SOCOREN
Prix sur consultation
Recevez une étude personnalisée
de cette maison
- 90 m²
- 3 chambres
Réf. alban-t5
Caractéristiques du modèle ALBAN T5
| ALBAN T5-3CH89 | 4 Pièces | 3 chambres | 89.6 m² | Prix NC |

