Projet de construction d'une maison 50 m² avec terrain à SAINT-BENOIT (86) Proposé par Maisons BEBIUM - Nouvelle Aquitaine
Recevez une étude personnalisée
de cette offre
Maison neuve avec terrain Saint-Benoît (86280)
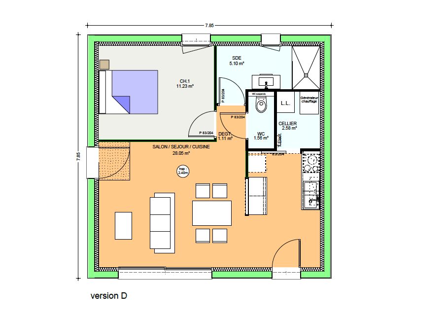
dès 200 000 €Une pièce à vivre de 28 m²
Quand on a de l'espace, la vie de famille est bien plus agréable.
La grande pièce de vie rectangulaire est baignée de lumière naturelle grâce à sa large baie vitrée et sa porte fenêtre.
La cuisine aménagée ouverte sur le coin repas offre une vue dégagée sur le salon et le jardin.
Pratique et rassurante
La chambre d’une surface d’environ 12 m² permettent d'aménager de grands placards.
Le cellier fait office de local technique, de buanderie et d’espace de rangement. Il se fait discret au fond de la cuisine derrière une porte coulissante.
Dans cette maison construite de plain-pied, toutes les pièces sont accessibles : un avantage avec des enfants en bas âge. Une maison familiale confortable, facile à vivre, l’une des préférées de nos clients.
GARAGE EN OPTION
L'Optima 50 existe en version INTEGRA avec son garage attenant et en combles aménageables pour les pentes de toit supérieures à 35°.
D'autres modèles peuvent être implanté sur cette parcelle à un prix différent.
Contactez Morgane PLANES au 06 85 36 99 41 ou au 05 16 39 71 56 (Maisons BEBIUM - Nouvelle Aquitaine - Agence de Poitiers).
Prix avec assurance dommages-ouvrage comprise, VRD compris, terrain viabilisé, frais de notaire non compris, frais divers non compris. Terrain sélectionné et vu pour vous sous réserve de disponibilité et au prix indiqué par notre partenaire foncier. Conditions de cette annonce et visuels non contractuels.
Cette annonce a été créée et diffusée avec le logiciel VITAHOME.
- 50m²
- 1 chambres
Réf. TMMP010292CE7B4304
Informations sur le terrain
Magnifique parcelle situé au plein coeur de Saint Benoit.
Avant dernier terrain à la vente sur ce secteur !
A proximité direct du Grand Frais mais également de la pharmacie, vous pourrez réaliser nombre de déplacement à pied.
Une parfaite exposition sud pour un projet de construction idéalement implanté.
Terrain complètement viabilisé
2 placettes de parking seront prévus sur le terrain pour vos voitures mais également, des places de stationnements sont situé juste devant le terrain.
Lotissement résidentiel tout en étant aux portes du centre ville de Poitiers.
Axe stratégique, situé entre les deux plus importantes zones commerciales : Beaulieu et Poitiers Sud + accès à l'autoroute A10 en 5min.
Contactez Morgane au 06 85 36 99 41 pour l'élaboration de votre projet de construction clé en main !
Surface : 488m²
Commune : 86280 Saint-Benoît
Département : VIENNE (86)
Modèle présenté
Modèle : OPTIMA 50
Surface habitable : 50m²
Pièces : 0
chambres : 1
Construction : NC

