Construire sa maison 2 chambres 60m² sur un terrain de 469m² en VIENNE (86) | TMMP0102924C1DDE10

Projet de construction d'une maison 60 m² avec terrain à MONTAMISE (86) Proposé par Maisons BEBIUM - Nouvelle Aquitaine

Maison neuve avec terrain Montamisé (86360)

dès  191 643 €

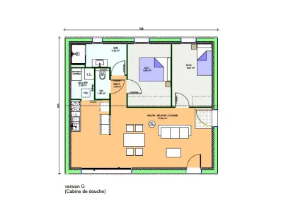
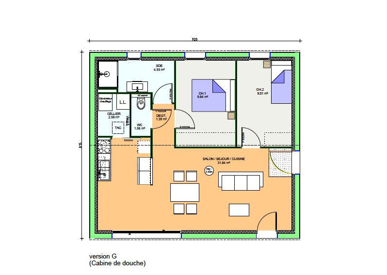
Une pièce à vivre de 32 m²
Quand on a de l'espace, la vie de famille est bien plus agréable.

La grande pièce de vie rectangulaire est baignée de lumière naturelle grâce à sa large baie vitrée et sa porte fenêtre.

La cuisine aménagée ouverte sur le coin repas offre une vue dégagée sur le salon et le jardin.

Pratique et rassurante
Les deux chambres d’une surface d’environ 10 m² permettent d'aménager de grands placards.

Le cellier fait office de local technique, de buanderie et d’espace de rangement. Il se fait discret au fond de la cuisine derrière une porte coulissante.

Dans cette maison construite de plain-pied, toutes les pièces sont accessibles : un avantage avec des enfants en bas âge. Une maison familiale confortable, facile à vivre, l’une des préférées de nos clients.

GARAGE EN OPTION

L'Optima 60 existe en version INTEGRA avec son garage attenant et en combles aménageables pour les pentes de toit supérieures à 35°.

D'autres modèles peuvent être implanté sur cette parcelle à un prix différent.

Contactez Morgane PLANES au 06 85 36 99 41 ou au 05 16 39 71 56 (Maisons BEBIUM - Nouvelle Aquitaine - Agence de Poitiers).

Prix avec assurance dommages-ouvrage comprise, VRD compris, terrain viabilisé, frais de notaire compris, frais divers compris. Terrain sélectionné et vu pour vous sous réserve de disponibilité et au prix indiqué par notre partenaire foncier. Conditions de cette annonce et visuels non contractuels.
Cette annonce a été créée et diffusée avec le logiciel VITAHOME.

 

  • 60m²
  • 2 chambres
Réf. TMMP0102924C1DDE10

Informations sur le terrain

 

Magnifique parcelle situé au plein coeur de Montamisé
Plusieurs parcelles sont à vendre sur ce lotissement !

Vous aurez une vue imprenable sur la plaine de Montamisé

A proximité direct de la COOP, Crédit Agricole, Maire, Eglise...mais également de la pharmacie. Vous pourrez réaliser nombre de déplacement à pied.
Une parfaite exposition sud pour un projet de construction idéalement implanté.
Terrain complètement viabilisé
2 placettes de parking seront prévus sur le terrain pour vos voitures mais également, des places de stationnements sont situé juste devant le terrain.
Lotissement résidentiel tout en étant aux portes du centre ville de Poitiers.
Axe stratégique, très demandé et privilégié + accès à l'autoroute A10 en 10min.

Contactez Morgane au 06 85 36 99 41 pour l'élaboration de votre projet de construction clé en main !
Surface : 469m²
Commune : 86360 Montamisé
Département : VIENNE (86)

Modèle présenté

 

Modèle : OPTIMA 60
Surface habitable : 60m²
Pièces : 3
chambres : 2
Construction : NC

 

 

Contactez Maisons BEBIUM - Nouvelle Aquitaine
pour cette maison avec terrain

 

* Champ obligatoire

 


Consultez tous nos conseils
pour réaliser votre projet de construction !

Pour tout savoir sur la construction de maisons individuelles, choisir son constructeur, concevoir sa future maison neuve, sélectionner son terrain à bâtir ou bien financer son projet de construction, consultez tous nos précieux conseils via notre guide de la construction

Consultez notre guide de la construction

 

 

Retour en haut de page
Devis pour mon projet