Projet de construction d'une maison 70 m² avec terrain à JAUNAY-MARIGNY (86) Proposé par Maisons BEBIUM - Nouvelle Aquitaine
Recevez une étude personnalisée
de cette offre
Maison neuve avec terrain Jaunay-Marigny (86130)
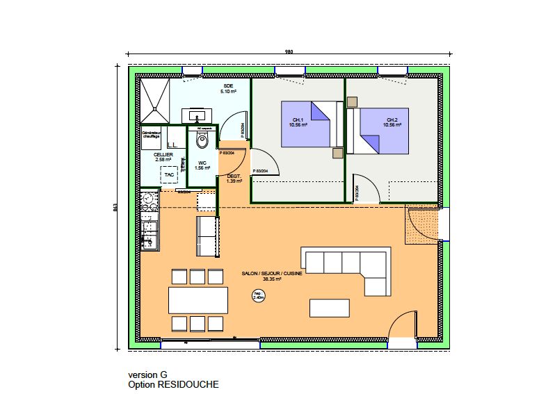
dès 173 052 €Une pièce à vivre de 40 m²
Quand on a de l'espace, la vie de famille est bien plus agréable.
La grande pièce de vie rectangulaire est baignée de lumière naturelle grâce à sa large baie vitrée et sa porte fenêtre.
La cuisine aménagée ouverte sur le coin repas offre une vue dégagée sur le salon et le jardin.
Pratique et rassurante
Les deux chambres d’une surface d’environ 11 m² permettent d'aménager de grands placards.
Le cellier fait office de local technique, de buanderie et d’espace de rangement. Il se fait discret au fond de la cuisine derrière une porte coulissante.
Dans cette maison construite de plain-pied, toutes les pièces sont accessibles : un avantage avec des enfants en bas âge. Une maison familiale confortable, facile à vivre, l’une des préférées de nos clients.
Garage indépendant suivant implantation terrain
Contactez Morgane PLANES au 06 85 36 99 41 ou au 05 16 39 71 56 (Maisons BEBIUM - Nouvelle Aquitaine - Agence de Poitiers).
Prix avec assurance dommages-ouvrage comprise, VRD compris, terrain viabilisé, frais de notaire compris, frais divers compris. Terrain sélectionné et vu pour vous sous réserve de disponibilité et au prix indiqué par notre partenaire foncier. Conditions de cette annonce et visuels non contractuels.
Cette annonce a été créée et diffusée avec le logiciel VITAHOME.
- 70m²
- 2 chambres
Réf. TMMP010292DEE73F1D
Informations sur le terrain
Situé sur la commune de Jaunay-Marigny
Secteur calme et résidentiel aux Portes du Futuroscope et à 15min du centre ville de Poitiers
Terrain viabilisé, plat et exposé sud
Plusieurs terrains sont à vendre sur ce lotissement
Surface : 428m²
Commune : 86130 Jaunay-Marigny
Département : VIENNE (86)
Modèle présenté
Modèle : OPTIMA 70 2 CH
Surface habitable : 70m²
Pièces : 3
chambres : 2
Construction : NC

