Projet de construction d'une maison 110m² avec terrain à CHAMPIGNY-SUR-MARNE (94) Proposé par Maisons Sésame
Recevez une étude personnalisée
de cette offre
Maison neuve avec terrain Champigny-sur-Marne (94500)
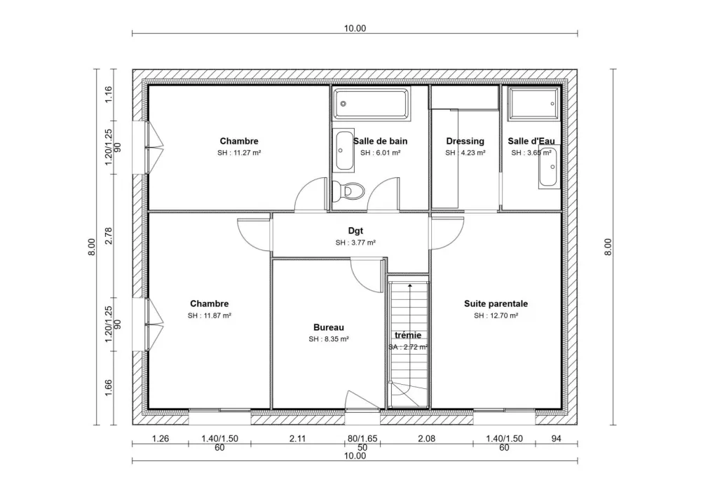
dès 499 000 €A Champigny sur Marne , sur le quartier très recherché du PLANT Coline THOMAZET joignable au 06.18.98.35.56 vous propose de réaliser cette maison neuve très moderne composée d'un bel espace de vie de 45m², ainsi que 4 belles chambres dont une suite parentale sur un terrain plat de 300m2 plat.
Obtenez plus d'informations en me contactant sur mon portable ou sur mon Instagram: Coline_des_maisonssesame.
MAISONS SÉSAME vous propose les prestations suivantes :
- Plans des maisons modulables et adaptables selon vos besoins et les spécificités de votre terrain
- Large choix de systèmes de chauffage performants et économes en énergie
- Sélection de matériaux de qualité garantissant confort et durabilité
- Accompagnement sur-mesure pour la recherche et l’acquisition de votre terrain
- Construction conforme à la réglementation en vigueur et à la norme RE2020
- Maisons certifiées NF HABITAT, gage de qualité, de performance et de confort
Demandez une étude gratuite et personnalisée de votre projet de construction !
Contactez Coline THOMAZET au 06 18 98 35 56 ou au 01 83 01 03 04 (Maisons Sésame - Agence d'Ormesson sur Marne).
Étude gratuite de votre projet de construction !
De nombreux terrains disponibles dans votre secteur.
Informations légales :
Maisons Sésame, constructeur de maisons individuelles, propose une sélection de terrains en collaboration avec ses partenaires fonciers, sous réserve de disponibilité. Il n’agit pas en tant que mandataire pour la vente de ces terrains.
Nos maisons, certifiées NF Habitat et conformes à la réglementation thermique en vigueur, vous garantissent un habitat durable et économe en énergie. Découvrez un large choix de modèles adaptés aux besoins de toute la famille.
Informations tarifaires :
Les prix indiqués sont donnés à titre indicatif et n’incluent pas les frais annexes (frais de notaire, raccordements, etc.).
Les visuels et prix présentés sont non contractuels. Pour plus de détails, consultez nos conditions en agence.
N° ORIAS IOBSP 13007108 – RCS Versailles 388 867 426.
Les informations sur les risques auxquels ce bien est exposé sont disponibles sur le site Géorisques : www.georisques.gouv.fr
Cette annonce a été créée et diffusée avec le logiciel VITAHOME.
- 110m²
- 4 chambres
Réf. TMCT0368511DAE3FB6
Informations sur le terrain
Quartier recherché du plant
Surface : 300m²
Commune : 94500 Champigny-sur-Marne
Département : VAL-DE-MARNE (94)
Modèle présenté
Modèle : Modèle de 110 m² à 195 000,00 €
Surface habitable : 110m²
Pièces : 5
chambres : 4
Garage : 13m²
Construction : NC

