Construire sa maison 4 chambres 140m² sur un terrain de 441m² en MORBIHAN (56) | TMAG020775F24D7DB1

Projet de construction d'une maison 140 m² avec terrain à INZINZAC-LOCHRIST (56) Proposé par Maisons i 29

Maison neuve avec terrain Inzinzac-Lochrist (56650)

dès  384 358 €

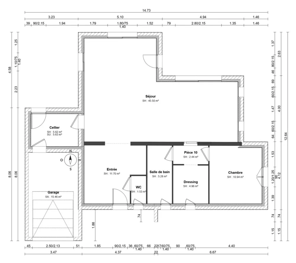
Imaginer par maisons i 29 sur un terrain de 410 m², cette maison contemporaine bénéficie d’une orientation idéale. Avec 140 m² habitable cette maison propose un parfait équilibre entre confort, luminosité et fonctionnalité.

L’espace de vie principal de 45m², largement ouvert sur l’extérieur, offre une atmosphère chaleureuse et conviviale.
La partie nuit comprend une suite parentale au RDC avec dressing et salle d'eau, 3 chambres bien agencées à l'étage pouvant également servir d’espace supplémentaire (bureau, chambre d’amis, etc.. ) ainsi qu'un dégagement.

Le plan a été conçu sur mesure avec nos clients et reste entièrement personnalisable selon vos envies.

Elle bénéficie des finitions de la gamme « SIGNATURE » incluant :
• Un système de chauffage AIR/EAU (plancher chauffant)
• Une salle de bain entièrement équipée:
- meuble simple vasque de 90 cm ou double vasque de 120 cm, ainsi qu’un miroir antibuée à LED
- receveur de douche extra-plat de 90 x 120 cm avec robinetterie, ciel de pluie et douchette (GROHE)
- faïences 90 x 30 dans l’espace douche, fournies et posées
• Menuiseries et porte d'entrée en Alu avec fenêtres oscillo-battantes
• Les revêtements de sols de la gamme signature et la peinture fournis et visible dans notre showroom

Prix du projet terrain + maison : 384 358 €
• Terrain de 441 m² : 73 900 €
• Maison : 310 458 €

Contactez Adelin GELARD au 02 98 11 79 46 (Maisons i 29 - Agence de Pluguffan).

D’autres opportunités de terrains sont disponibles via Maisons I29.
Frais de notaire, raccordements, assainissement, taxes et frais annexes non incluses.
Terrain sous réserve de disponibilité. Conditions non contractuelles.
Cette annonce a été créée et diffusée avec le logiciel VITAHOME.

 

  • 140m²
  • 4 chambres
Réf. TMAG020775F24D7DB1

Informations sur le terrain

 

Situé Rue Françoise Dolto, à Inzinzac-Lochrist, dans un cadre de vie verdoyant tout en étant à proximité du centre-ville. Localisation privilégiée : au calme, dans un écrin de verdure, tout en étant proche des commodités de la ville, de la maison de l’enfance. Le lotissement repose sur 4 grands principes : la place de village, l’irrigation, l’écrin végétal et l’accès au logement pour tous. Il s’intègre harmonieusement dans son environnement, offrant à ses futurs habitants, une belle qualité de vie dans le respect de la nature.
Surface : 441m²
Commune : 56650 Inzinzac-Lochrist
Département : MORBIHAN (56)

Modèle présenté

 

Modèle : IMPOSANTE
Surface habitable : 140m²
Pièces : 5
chambres : 4
Garage : 15.5m²
Construction : NC

 

 

Contactez Maisons i 29
pour cette maison avec terrain

 

* Champ obligatoire

 


Consultez tous nos conseils
pour réaliser votre projet de construction !

Pour tout savoir sur la construction de maisons individuelles, choisir son constructeur, concevoir sa future maison neuve, sélectionner son terrain à bâtir ou bien financer son projet de construction, consultez tous nos précieux conseils via notre guide de la construction

Consultez notre guide de la construction

 

 

Retour en haut de page
Devis pour mon projet