Maison moderne et lumineuse de 120 m² à OLIVET (45 160 ) Proposé par Mon Courtier Maison









Recevez une étude personnalisée
de cette offre









Maison neuve avec terrain Olivet (45160)
dès 395 750 €A OLIVET sur un terrain de 567 m², "Mon Courtier Maison" vous propose, par le biais de ses partenaires, une maison contemporaine, ultra lumineuse de 120 m² habitables, pensée pour vous offrir de beaux volumes de vie généreux.
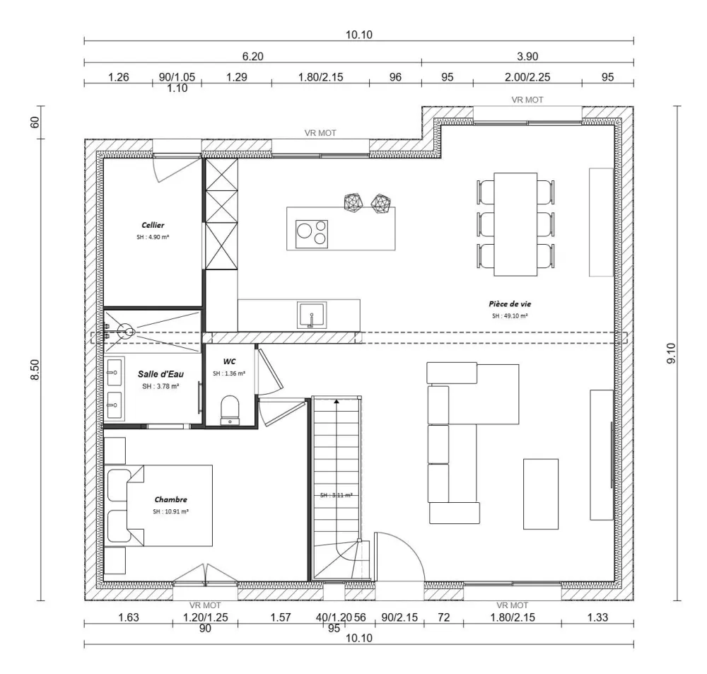
Le RDC accueille une vaste pièce de vie conviviale avec une cuisine ouverte, un cellier accolé et un WC . Une chambre parentale avec espace placard et salle d'eau prend également place à ce niveau.
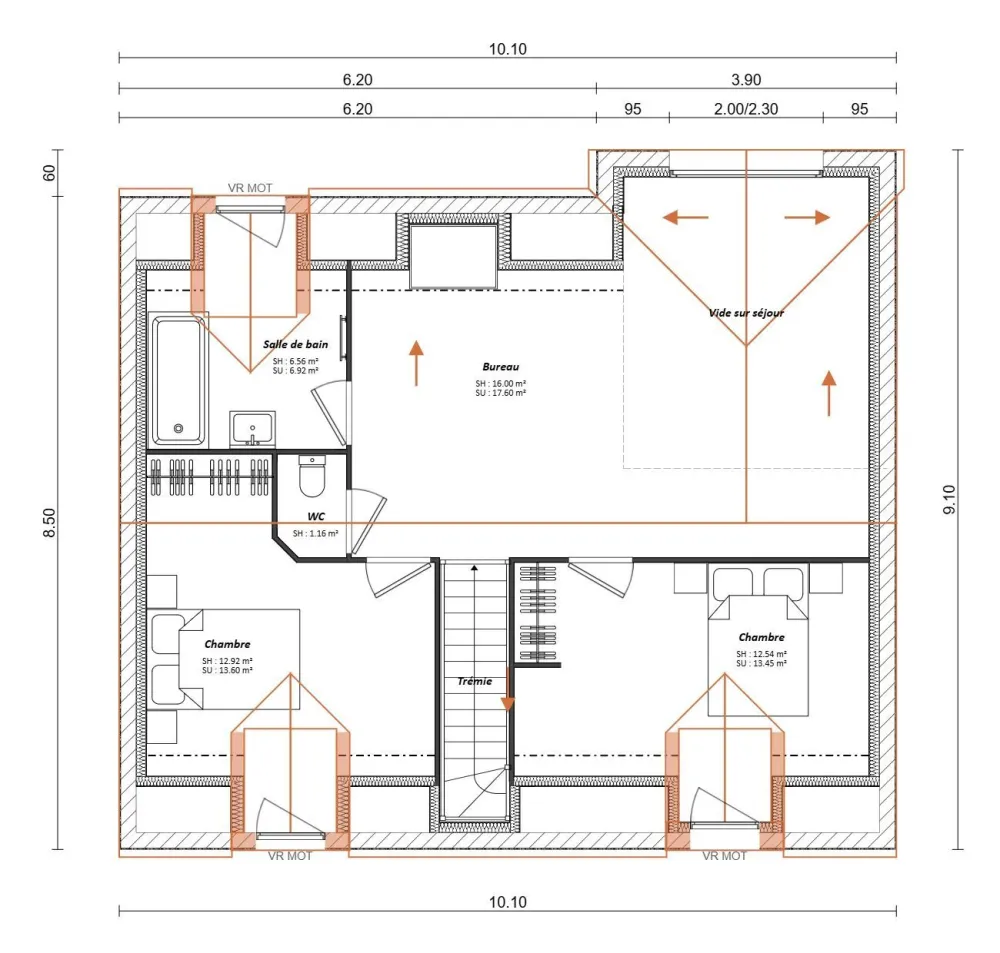
A l'étage, vous profiterez d'une mezzanine avec un superbe vide sur hall ainsi que de deux belles chambres équipées d'espaces placards, d'une salle de bains moderne avec WC.
Informations du terrain : Réservez, sans tarder, ce terrain de 567 m² sur la commune d'Olivet (45 160).
Demandez une étude gratuite et personnalisée sur ce terrain à OLIVET !
Contactez notre agence MCM située au 652 Rue Marcel Belot à Olivet (45160) par téléphone au 06 66 22 26 81 / 02 38 66 06 04 ou par email : agence.orleans@moncourtiermaison.fr
Nos réalisations : https://www.moncourtiermaison.fr/societe/realisations.html
SL HOME, SARL au capital de 5 000€ / Réseau MON COURTIER MAISON – Courtier en travaux neuf
652, rue Marcel Belot – 45160 OLIVET – 02 38 66 06 04
RCS ORLEANS B 805 035 375 – APE 8299Z
Mon Courtier Maison n’a pas la qualité juridique d’un constructeur et n’est au service exclusif d’aucune entreprise de travaux.
Bien sélectionné par un partenaire foncier. Sous toutes réserves de disponibilité et de prix, de raccordements, de branchements, de frais accessoires, dont frais de Notaire.
Une création MON COURTIER MAISON@2021 – Crédit photo : Mon Courtier Maison.
Cette annonce a été créée et diffusée avec le logiciel VITAHOME.
- 120m²
- 3 chambres
Réf. TMSS0056904E402C8C
Informations sur le terrain
Réservez, sans tarder, ce terrain de 567 m² sur la commune d'Olivet (45 160).
Surface : 567m²
Commune : 45160 Olivet
Département : LOIRET (45)
Modèle présenté
Modèle : DAILILY
Surface habitable : 120m²
Pièces : 4
chambres : 3
Construction : NC