Construire sa maison 4 chambres 117m² sur un terrain de 519m² en LOIRE (42) | TMLT046454036CAD18

Projet de construction d'une maison 117 m² avec terrain à SAINT-GENEST-LERPT (42) Proposé par Maisons MAG 42

Maison neuve avec terrain Saint-Genest-Lerpt (42530)

dès  389 000 €

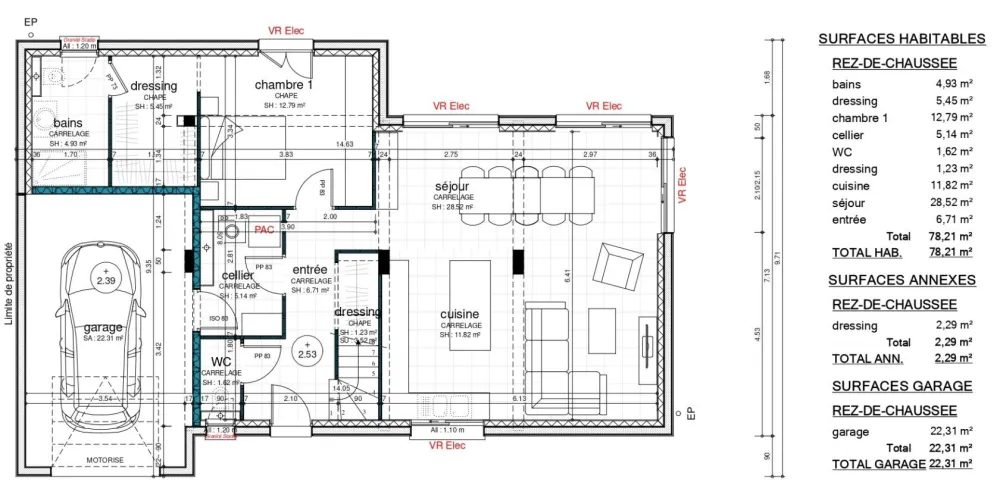
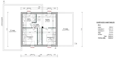
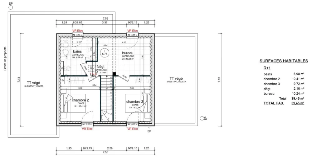
A SAINT-GENEST-LERPT sur un terrain de 519 m², MAISONS MAG vous propose de réaliser cette maison neuve d'une surface de 117 m² habitables avec 4 chambres.

MAISONS MAG vous propose les prestations suivantes :
- Plan sur-mesure et personnalisé
- Mode de chauffage au choix
- Grands choix d'équipements et de prestations
- Matériaux de qualité selon les normes en vigueur
- Accompagnement dans le choix et l’acquisition du terrain
- Construction conforme à la nouvelle RE 2020

Informations du terrain : Parcelle viabilisée d'une surface de 519 m²,
Ce secteur résidentiel de St Genest Lerpt est à proximité des commerces du centre ville, des accès routiers via la plaine du Forez ou Lyon
Contact Maisons Mag 42, projet étudié sur mesure en fonction de vos attentes.

Demandez une étude gratuite et personnalisée de votre projet de construction !

Contactez nous au 04 77 57 03 00 (Maisons MAG 42 - Agence de Saint-Genest-Lerpt).

Prix avec assurance dommages-ouvrage comprise, VRD non compris, terrain viabilisé, assainissement compris, frais de notaire non compris, taxes non comprises. Terrain sélectionné sous réserve de disponibilité et au prix indiqué par notre partenaire foncier. Conditions et visuels non contractuels.
Cette annonce a été créée et diffusée avec le logiciel VITAHOME.

 

  • 117m²
  • 4 chambres
Réf. TMLT046454036CAD18

Informations sur le terrain

 

Parcelle viabilisée d'une surface de 519 m²,
Ce secteur résidentiel de St Genest Lerpt est à proximité des commerces du centre ville, des accès routiers via la plaine du Forez ou Lyon
Contact Maisons Mag 42, projet étudié sur mesure en fonction de vos attentes.
Surface : 519m²
Commune : 42530 Saint-Genest-Lerpt
Département : LOIRE (42)

Modèle présenté

 

Modèle : SEMAOUNE
Surface habitable : 117m²
Pièces : 5
chambres : 4
Garage : 22m²
Construction : NC

 

 

Contactez Maisons MAG 42
pour cette maison avec terrain

 

* Champ obligatoire

 


Consultez tous nos conseils
pour réaliser votre projet de construction !

Pour tout savoir sur la construction de maisons individuelles, choisir son constructeur, concevoir sa future maison neuve, sélectionner son terrain à bâtir ou bien financer son projet de construction, consultez tous nos précieux conseils via notre guide de la construction

Consultez notre guide de la construction

 

 

Retour en haut de page
Devis pour mon projet