Construire sa maison 2 chambres 87m² sur un terrain de 300m² en ILLE-ET-VILAINE (35) | TMSF0166296EAF9891

Projet de construction d'une maison 87 m² avec terrain à SAINT-AUBIN-D'AUBIGNE (35) Proposé par LES MAISONS D'EVA

Maison neuve avec terrain Saint-Aubin-d'Aubigné (35250)

dès  239 078 €

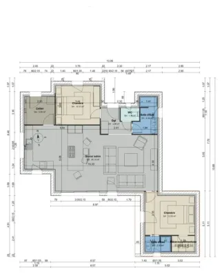
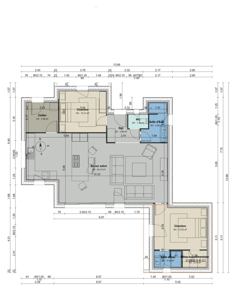
A SAINT-AUBIN-D'AUBIGNE sur un terrain de 300 m², LES MAISONS D'EVA vous propose de réaliser cette maison neuve d'une surface de 87 m² habitables avec 2 chambres. Vivez en toute tranquillité au sein de cette résidence à l'abris des vues.

- deux chambres dont une vaste suite parentale avec salle d'eau et dressing
- un grand salon très lumineux
- un cellier attenant à la cuisine pour fournir une grande capacité de rangement
- bardage bois et fenêtre plaquée aluminium extérieure
- PAC plancher chauffant pour un maximum de confort
Les Maisons d’EVA, constructeur de maisons individuelles, et de maisons passives, vous accompagnera tout au long de votre projet... Et même après !
En effet, avec une philosophie orientée 100% satisfaction client.
Qu’elle soit passive, « haute couture », ou encore un premier projet adapté à votre mode de vie et votre budget.
Notre équipe de professionnels vous aidera à réaliser le projet de vos rêves en toute sérénité.
Bienvenue chez vous.

Demandez une étude gratuite et personnalisée de votre projet de construction sur ce terrain !

Contactez Samuel FOGOLIN - Chargé d’affaires Ille et Vilaine et Côtes d’Armor - au 06 78 42 11 41 ou au 09 74 56 49 37 (LES MAISONS D'EVA - Agence de La Chapelle Sur Erdre).

Prix avec assurance dommages-ouvrage comprise, hors sol des chambres et peintures intérieures, terrain viabilisé, assainissement compris, VRD non compris, adaptation non comprise, frais de notaire non compris, taxes non comprises, frais divers non compris. Terrain sélectionné et vu pour vous sous réserve de disponibilité et au prix indiqué par notre partenaire foncier. Conditions et visuels non contractuels.
Cette annonce a été créée et diffusée avec le logiciel VITAHOME.

 

  • 87m²
  • 2 chambres
Réf. TMSF0166296EAF9891

Informations sur le terrain

 


Surface : 300m²
Commune : 35250 Saint-Aubin-d'Aubigné
Département : ILLE-ET-VILAINE (35)

Modèle présenté

 

Modèle : PROTEGO
Surface habitable : 87m²
Pièces : 5
chambres : 2
Construction : NC

 

 

Contactez LES MAISONS D'EVA
pour cette maison avec terrain

 

* Champ obligatoire

 


Voici d'autres offres sur Saint-Aubin-d'Aubigné (35) et ses environs

Consultez tous nos conseils
pour réaliser votre projet de construction !

Pour tout savoir sur la construction de maisons individuelles, choisir son constructeur, concevoir sa future maison neuve, sélectionner son terrain à bâtir ou bien financer son projet de construction, consultez tous nos précieux conseils via notre guide de la construction

Consultez notre guide de la construction

 

 

Retour en haut de page
Devis pour mon projet