Projet de construction d'une maison 96 m² avec terrain à PLAISANCE-DU-TOUCH (31) au prix de 253 450 €. Proposé par Villas et Maisons de France

Maison neuve avec terrain Plaisance-du-Touch (31830)

dès  253 450 €

Vue dégagée - proche des commodités

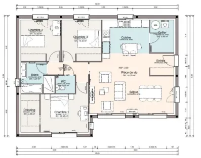
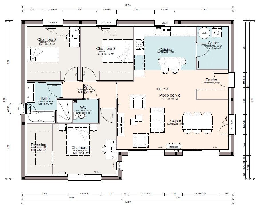
La "Maison SUD OUEST", spécialement conçue pour ce terrain, se distingue par ses nombreuses ouvertures depuis son espace de vie lumineux de 41,33m².
Elle comprend 3 chambres, dont une suite parentale avec dressing, et une salle de bains pour un confort optimal.
Le salon communique avec la cuisine, créant un espace de vie accueillant, parfait pour les moments de convivialité.
Côté logistique, la distribution intérieure prévoit un cellier de près de 5m² pour vos besoins de rangement.

Certifié Properméa et avec un process de haute qualité environnementale, Villas et Maisons de France s'engage à réduire l'empreinte carbone de votre projet. Nous garantissons et contrôlons la conformité avec la RE 2020, l'étiquette énergie A, ainsi que la qualité du traitement de l'étanchéité à l'air, le tri sélectif et la valorisation des déchets. Votre interlocuteur dédié vous accompagnera dans toutes les étapes de votre projet, que ce soit pour le financement, l'obtention du permis de construire, ou l'acte authentique d'acquisition du terrain. Dès le début de votre chantier, suivez en temps réel et en images l'avancement de vos travaux grâce à votre Espace Client Privilège.

Notre Contrat de Construction de Maison Individuelle vous garantit une construction sûre et durable, avec la Garantie de Livraison, l'Assurance Décennale Dommages Ouvrage, la Garantie de Parfait Achèvement et Biennale.

Pour concrétiser votre projet, contactez Arnaud MERCIER au O6 20 74 42 73, et découvrez le compromis entre le calme et la praticité, au cœur d’une maison moderne et chaleureuse.

Contactez Arnaud MERCIER au 06 20 74 42 73 ou au 05 34 48 00 00 (Villas et Maisons de France).

Prix avec assurance dommages-ouvrage comprise, VRD non compris, terrain non viabilisé, frais de notaire non compris, frais divers non compris. Terrain sélectionné et vu pour vous sous réserve de disponibilité et au prix indiqué par notre partenaire foncier. Plans contractuels, visuels non contractuels.
Cette annonce a été créée et diffusée avec le logiciel VITAHOME.

 

  • 96m²
  • 3 chambres
Réf. TMAM013526959278CB

Informations sur le terrain

 

Vue dégagée - proche des commodités
Surface : 484m²
Commune : 31830 Plaisance-du-Touch
Département : HAUTE-GARONNE (31)

Modèle présenté

 

Modèle : SUD OUEST
Surface habitable : 96m²
Pièces : 4
chambres : 3
Construction : NC

 

 

Contactez Villas et Maisons de France
pour cette maison avec terrain

 

* Champ obligatoire

 


Consultez tous nos conseils
pour réaliser votre projet de construction !

Pour tout savoir sur la construction de maisons individuelles, choisir son constructeur, concevoir sa future maison neuve, sélectionner son terrain à bâtir ou bien financer son projet de construction, consultez tous nos précieux conseils via notre guide de la construction

Consultez notre guide de la construction

 

 

Retour en haut de page
Devis pour mon projet