Projet de construction d'une maison 96 m² avec terrain à PLAISANCE-DU-TOUCH (31) au prix de 267 000 €. Proposé par Villas et Maisons de France
Recevez une étude personnalisée
de cette offre
Maison neuve avec terrain Plaisance-du-Touch (31830)
dès 267 000 €Terrain plat, viabilisé
PLAISANCE DU TOUCH – Maison T4. Dans un cadre résidentiel, calme et dégagé, proche des commerces et services, sur cette parcelle de 424 m², réalisez votre projet sur-mesure avec Villas et Maisons de France, constructeur régional expérimenté, spécialiste de la maison personnalisée écoresponsable et avec un process de haute qualité environnementale. Plans uniques et exclusifs conçus avec vous par les dessinateurs-métreurs de notre bureau d'études spécialisé.
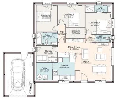
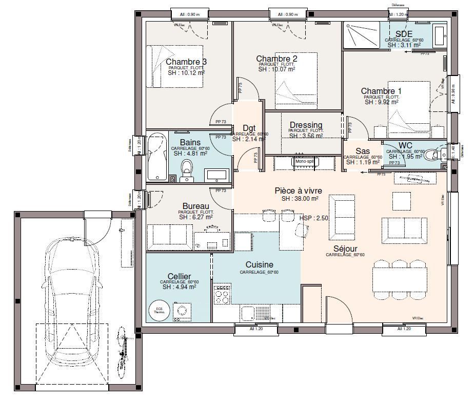
Ici, Villa Coup de Cœur de notre nouvelle collection, le modèle « Méridionale » de 96 m² habitables se distingue par son charme naturel et sa distribution intérieure ultra optimisée et spécialement conçue pour ce terrain. L’entrée, fonctionnelle, dévoile la pièce de vie de 38m² prolongée par sa cuisine ouverte et son cellier communiquant. Dans le premier coin nuit, un dégagement minimaliste de 2,14m² dessert une salle de bain confortable et 2 chambres de plus de 10m² chacune. Le second coin nuit, parental, comprend une suite avec dressing et salle d'eau. Un toilette séparé avec double intimité intelligente pour les invités ou les parents.
Un bureau fonctionnel vient agrémenter l'ensemble. Le garage est possible en option mais n'est pas chiffré pour cette annonce. Le projet clef en main sans garage, toutes charges annexes comprises, impôts, taxes, raccordements et toutes options s'élève à 325 000 € TTC.
Certifié Properméa, avec un process de haute qualité environnementale, Villas et Maisons de France réduit l’empreinte carbone de votre construction. RE 2020, étiquette énergie A, qualité du traitement de l’étanchéité à l’air, tri sélectif et valorisation des déchets sont garantis et contrôlés. Un interlocuteur unique vous assistera dans vos démarches (financement, permis de construire et acte authentique d’acquisition du terrain). Votre Espace Client Privilège vous permettra de suivre, en temps réel et en images, chaque étape des travaux.
Pour votre sérénité, notre Contrat de Construction de Maison Individuelle CCMI, vous confère garantie de livraison, assurance décennale dommages ouvrage, garantie de bon fonctionnement et de parfait achèvement. Construire durable c’est aussi choisir un constructeur 100% régional, contacter Arnaud Mercier au 06 20 74 42 73.
Contactez Arnaud MERCIER au 06 20 74 42 73 ou au 05 34 48 00 00 (Villas et Maisons de France).
Prix avec assurance dommages-ouvrage comprise, VRD non compris, terrain viabilisé, frais de notaire non compris, frais divers non compris. Terrain sélectionné et vu pour vous sous réserve de disponibilité et au prix indiqué par notre partenaire foncier. Plans contractuels, visuels non contractuels.
Cette annonce a été créée et diffusée avec le logiciel VITAHOME.
- 96m²
- 3 chambres
Réf. TMAM0135265C9DC9EB
Informations sur le terrain
Terrain plat, viabilisé
Surface : 424m²
Commune : 31830 Plaisance-du-Touch
Département : HAUTE-GARONNE (31)
Modèle présenté
Modèle : MERIDIONALE 96
Surface habitable : 96m²
Pièces : 4
chambres : 3
Construction : NC

