Projet de construction d'une maison 105 m² avec terrain à LABARTHE-SUR-LEZE (31) au prix de 0€. Proposé par Villas et Maisons de France
Recevez une étude personnalisée
de cette offre
Maison neuve avec terrain Labarthe-sur-Lèze (31860)
dès 267 000 €Terrain viabilisé - toutes les études sont disponibles - projet de maison prêts
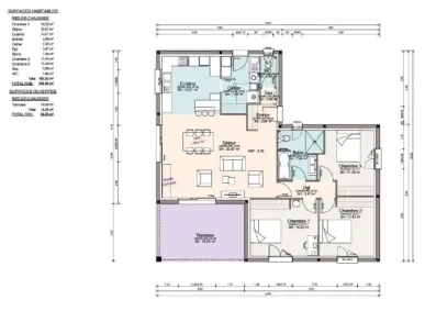
LABARTHE SUR LEZE – Villa T4. Dans un environnement calme, sur ce terrain de 478 m², à Labarthe sur Lèze, apporté par notre partenaire foncier sous réserve de disponibilité, confiez la construction de votre maison à Villas et Maisons de France. Découvrez les coulisses de la conception de votre maison et rencontrez les dessinateurs-métreurs de notre bureau d'étude spécialisé, basés dans nos locaux à Toulouse. Projet ambitieux ou petite maison traditionnelle, vos plans seront ajustés selon vos souhaits et votre budget. Alliant tradition et modernité, le modèle STAR 105, spécialement conçu pour ce terrain, de 105 m² habitables, comprend une cuisine ouverte sur une pièce de vie très lumineuse de 45 m². Côté nuit, le confort est assuré par 3 chambres dont une vaste chambre parentale ergonomique, une salle de bain toute équipée et 2 WC . Un cellier/buanderie apporte rangements et fonctionnalité. Certifié Properméa et Haute Qualité Environnementale, Villas et Maisons de France réduit l’empreinte carbone de votre construction. RE 2020, étiquette énergie A, qualité du traitement de l’étanchéité à l’air, tri sélectif et valorisation des déchets sont garantis et contrôlés. Votre interlocuteur dédié vous assistera dans vos démarches (financement, permis de construire et acte authentique d’acquisition du terrain). Dès l'ouverture de votre chantier, suivez en temps réel et en images, l'avancement de vos travaux avec votre Espace Client Privilège. Notre Contrat de Construction de Maison Individuelle vous confère Garantie de Livraison, Assurance Décennale Dommages Ouvrage, Garantie de Parfait Achèvement et Biennale. Pour une construction sûre et durable, contacter Arnaud Mercier au 06 20 74 42 73, spécialiste de la Maison sur-mesure.
Contactez Arnaud MERCIER au 06 20 74 42 73 ou au 05 34 48 00 00 (Villas et Maisons de France).
Prix avec assurance dommages-ouvrage comprise, VRD non compris, terrain viabilisé, frais de notaire non compris, frais divers non compris. Terrain sélectionné et vu pour vous sous réserve de disponibilité et au prix indiqué par notre partenaire foncier. Plans contractuels, visuels non contractuels.
Cette annonce a été créée et diffusée avec le logiciel VITAHOME.
- 105m²
- 3 chambres
Réf. TMAM013526CEF8239C
Informations sur le terrain
Terrain viabilisé - toutes les études sont disponibles - projet de maison prêts
Surface : 478m²
Commune : 31860 Labarthe-sur-Lèze
Département : HAUTE-GARONNE (31)
Modèle présenté
Modèle : STAR 105
Surface habitable : 105m²
Pièces : 4
chambres : 3
Construction : NC

