Construire sa maison 5 chambres 157m² sur un terrain de 380m² en COTES-D'ARMOR (22) | TMSF0166298A1038B4

Projet de construction d'une maison 157 m² avec terrain à SAINT-CAST-LE-GUILDO (22) Proposé par LES MAISONS D'EVA

Maison neuve avec terrain Saint-Cast-le-Guildo (22380)

dès  371 850 €

A SAINT-CAST-LE-GUILDO sur un terrain de 345 m², LES MAISONS D'EVA vous propose de réaliser cette maison neuve d'une surface de 157 m² habitables avec 5 chambres.

VILLA OU INVESTISSEMENT LOCATIF ENTIEREMENT MODULABLE / SUR MESURE:

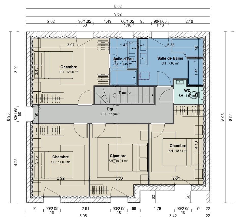
Sur ces 157m² habitables, cette maison offre de multiples possibilités d'habitation ou locatif en séparant les deux parties, grâce aux accès indépendants

- deux suites parentales au RDC avec salle d'eau
- 4 chambres étages confortables
- une très grande pièce de vie pouvant être fermée en cas de location pour partie
- trois salles d'eau et trois WC séparés
- un garage attenant avec porte sectionnelle motorisée

Nombreuses possibilités d'adaptation sur le terrain de votre choix, grâce à la confection des plans sur mesure.
Choix infini de système de chauffage, sol, faïences

Contactez S Fogolin au 06 78 42 11 41

Les Maisons d’EVA, constructeur de maisons individuelles, et de maisons passives, vous accompagnera tout au long de votre projet... Et même après !
En effet, avec une philosophie orientée 100% satisfaction client.
Qu’elle soit passive, « haute couture », ou encore un premier projet adapté à votre mode de vie et votre budget.
Notre équipe de professionnels vous aidera à réaliser le projet de vos rêves en toute sérénité.
Bienvenue chez vous.

Demandez une étude gratuite et personnalisée de votre projet de construction sur ce terrain !

Contactez Samuel FOGOLIN - Chargé d’affaires Ille et Vilaine et Côtes d’Armor - au 06 78 42 11 41 ou au 09 74 56 49 37 (LES MAISONS D'EVA - Agence de La Chapelle Sur Erdre).

Prix avec assurance dommages-ouvrage comprise, hors sol des chambres et peintures intérieures, terrain viabilisé, assainissement compris, VRD non compris, adaptation non comprise, frais de notaire non compris, taxes non comprises, frais divers non compris. Terrain sélectionné et vu pour vous sous réserve de disponibilité et au prix indiqué par notre partenaire foncier. Conditions et visuels non contractuels.
Cette annonce a été créée et diffusée avec le logiciel VITAHOME.

 

  • 157m²
  • 5 chambres
Réf. TMSF0166298A1038B4

Informations sur le terrain

 


Surface : 380m²
Commune : 22380 Saint-Cast-le-Guildo
Département : COTES-D'ARMOR (22)

Modèle présenté

 

Modèle : VILLA D'EMERAUDE
Surface habitable : 157m²
Pièces : 9
chambres : 5
Garage : 16.52m²
Construction : NC

 

 

Contactez LES MAISONS D'EVA
pour cette maison avec terrain

 

* Champ obligatoire

 


Consultez tous nos conseils
pour réaliser votre projet de construction !

Pour tout savoir sur la construction de maisons individuelles, choisir son constructeur, concevoir sa future maison neuve, sélectionner son terrain à bâtir ou bien financer son projet de construction, consultez tous nos précieux conseils via notre guide de la construction

Consultez notre guide de la construction

 

 

Retour en haut de page
Devis pour mon projet