Projet de construction d'une maison 104 m² avec terrain à ANDEL (22) Proposé par LES MAISONS D'EVA
Recevez une étude personnalisée
de cette offre
Maison neuve avec terrain Andel (22400)
dès 238 620 €A ANDEL sur un terrain de 400 m², LES MAISONS D'EVA vous propose de réaliser cette maison neuve d'une surface de 104 m² habitables avec 4 chambres.
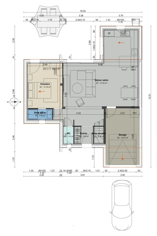
Modulez à volonté cette habitation de 104m² + un garage de 15m² attenant. Cette maison offre les caractéristiques suivantes :
- une suite parentale au RDC avec salle d'eau
- une grande pièce de vie bien orientée, quelque soit le terrain
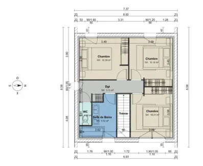
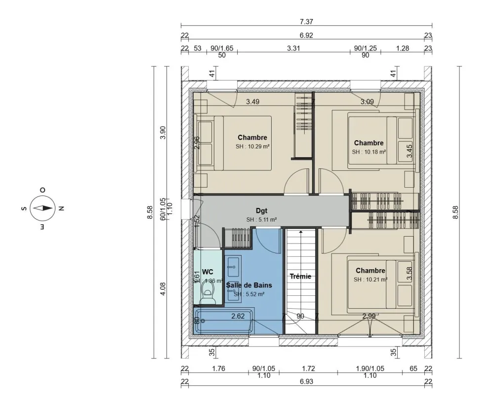
- trois chambres étages
- une salle de bai étage
- WC séparé RDC et étage
- PAC AIR EAU plancher chauffant et radiateurs étages
- Fenêtre anthracite extérieur et porte de garage sectionnelle motorisée
- carrelage 60X60
Nombreuses possibilités d'adaptation selon budget et caractéristiques des terrain
Les Maisons d’EVA, constructeur de maisons individuelles, et de maisons passives, vous accompagnera tout au long de votre projet... Et même après !
En effet, avec une philosophie orientée 100% satisfaction client.
Qu’elle soit passive, « haute couture », ou encore un premier projet adapté à votre mode de vie et votre budget.
Notre équipe de professionnels vous aidera à réaliser le projet de vos rêves en toute sérénité.
Bienvenue chez vous.
Demandez une étude gratuite et personnalisée de votre projet de construction sur ce terrain !
Contactez Samuel FOGOLIN - Chargé d’affaires Ille et Vilaine et Côtes d’Armor - au 06 78 42 11 41 ou au 09 74 56 49 37 (LES MAISONS D'EVA - Agence de La Chapelle Sur Erdre).
Prix avec assurance dommages-ouvrage comprise, hors sol des chambres et peintures intérieures, terrain viabilisé, assainissement compris, VRD non compris, adaptation non comprise, frais de notaire non compris, taxes non comprises, frais divers non compris. Terrain sélectionné et vu pour vous sous réserve de disponibilité et au prix indiqué par notre partenaire foncier. Conditions et visuels non contractuels.
Cette annonce a été créée et diffusée avec le logiciel VITAHOME.
- 104m²
- 4 chambres
Réf. TMSF0166294A140B16
Informations sur le terrain
Surface : 400m²
Commune : 22400 Andel
Département : COTES-D'ARMOR (22)
Modèle présenté
Modèle : FULL CIBLES
Surface habitable : 104m²
Pièces : 6
chambres : 4
Garage : 15m²
Construction : NC

