Projet de construction d'une maison 94 m² avec terrain à PLASSAC (17) Proposé par Maisons Chantal B
Recevez une étude personnalisée
de cette offre
Maison neuve avec terrain Plassac (17240)
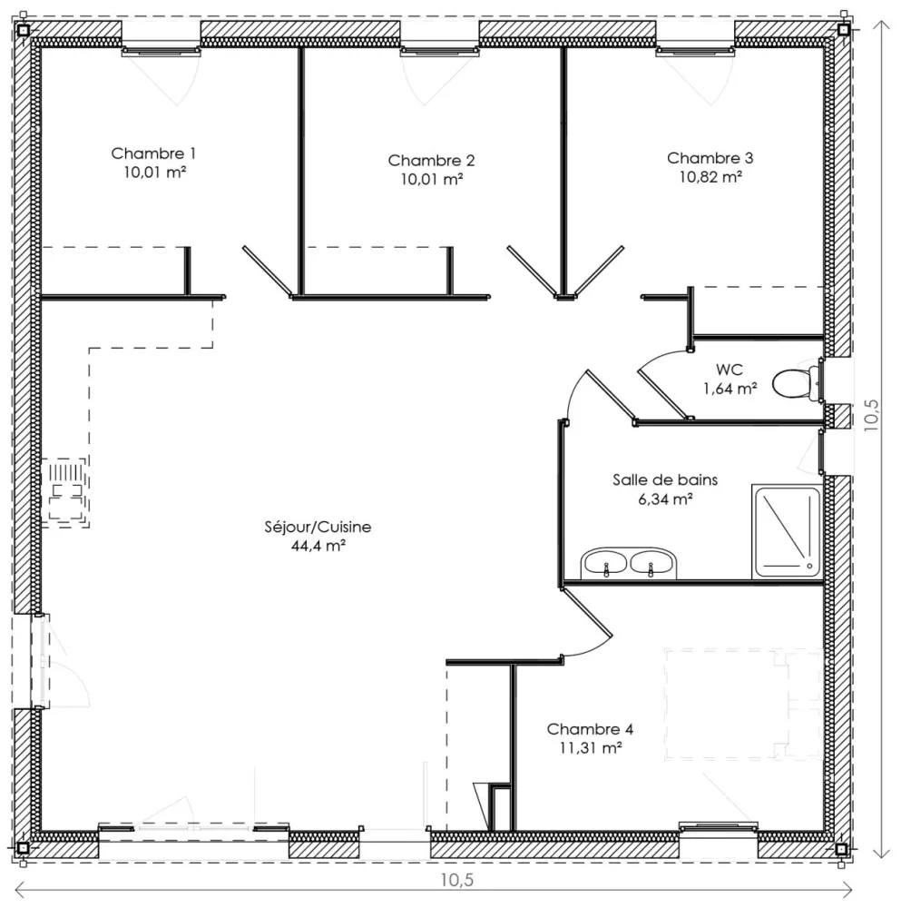
dès 160 000 €A PLASSAC sur un terrain de 970 m², MAISONS CHANTAL B vous propose de réaliser cette maison neuve d'une surface de 94 m² habitables avec 4 chambres.
MAISONS CHANTAL B vous propose les prestations suivantes :
- Plan sur-mesure et personnalisé de 2 à 5 chambres
- Mode de chauffage au choix
- Grands choix d'équipements et de prestations
- Matériaux de qualité selon les normes en vigueur
- Accompagnement dans le choix et l’acquisition du terrain
- Construction conforme à la nouvelle RE 2020
Informations du terrain : Situé dans la commune de Plassac, ce terrain offre un cadre
tranquille en campagne.
De plus, sa proximité avec diverses commodités facilite le quotidien de ses habitants.
D'une surface de 970 m², ce terrain à bâtir borné présente une belle
opportunité pour concrétiser un projet de construction sur mesure.
Les raccordements offrent une facilité d'accès aux réseaux d'eau, d'électricité et
d'assainissement, facilitant ainsi toutes les démarches liées à la construction.
Demandez une étude gratuite et personnalisée de votre projet de construction !
Contactez Damien ACKERMANN au 06 07 72 91 74 (Maisons Chantal B - Agence Royan).
Prix avec assurance dommages-ouvrage comprise, terrain non viabilisé, assainissement non compris, VRD non compris, adaptation non comprise, frais de notaire non compris, taxes non comprises, frais divers non compris. Terrain sélectionné et vu pour vous sous réserve de disponibilité et au prix indiqué par notre partenaire foncier. Conditions et visuels non contractuels.
Cette annonce a été créée et diffusée avec le logiciel VITAHOME.
- 94m²
- 4 chambres
Réf. TMDA042072DD95181C
Informations sur le terrain
Situé dans la commune de Plassac, ce terrain offre un cadre
tranquille en campagne.
De plus, sa proximité avec diverses commodités facilite le quotidien de ses habitants.
D'une surface de 970 m², ce terrain à bâtir borné présente une belle
opportunité pour concrétiser un projet de construction sur mesure.
Les raccordements offrent une facilité d'accès aux réseaux d'eau, d'électricité et
d'assainissement, facilitant ainsi toutes les démarches liées à la construction.
Surface : 970m²
Commune : 17240 Plassac
Département : CHARENTE-MARITIME (17)
Modèle présenté
Modèle : HOME3.94-4CH94
Surface habitable : 94m²
Pièces : 5
chambres : 4
Construction : NC

