Projet de construction d'une maison 107 m² avec terrain à LINARS (16) Proposé par Maisons Chantal B
Recevez une étude personnalisée
de cette offre
Maison neuve avec terrain Linars (16730)
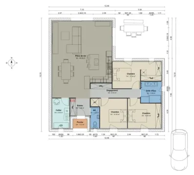
dès 225 900 €A LINARS sur un terrain de 860 m², MAISONS CHANTAL B vous propose de réaliser cette maison neuve d'une surface de 107 m² habitables avec 3 chambres.
Laissez vous seduire par cette maison moderne en L, pensée pour le confort et la lumière!
3chambres dont une suite parentale
Grande pièce de vie avec cuisine ouverte sur séjour ilot centrale, et deux baies vitrées
Plan optimisé et personnalisable.
Maison Eco performante RE 2020
Un projet idéal pour une famille ou un couple a la retraite.
Etude gratuite et plan sur demande
Informations du terrain : Superbe environnement
A deux pas des Commerces
Limite d'Angoulême
Plat
Viabilité en bordure
Demandez une étude gratuite et personnalisée de votre projet de construction !
Contactez David FORT au 06 72 60 33 16 (Maisons Chantal B - Showroom Cognac).
Prix avec assurance dommages-ouvrage comprise, terrain non viabilisé, assainissement non compris, VRD non compris, adaptation non comprise, frais de notaire non compris, taxes non comprises, frais divers non compris. Terrain sélectionné et vu pour vous sous réserve de disponibilité et au prix indiqué par notre partenaire foncier. Conditions et visuels non contractuels.
Cette annonce a été créée et diffusée avec le logiciel VITAHOME.
- 107m²
- 3 chambres
Réf. TMDF015500CDDD5321
Informations sur le terrain
Superbe environnement
A deux pas des Commerces
Limite d'Angoulême
Plat
Viabilité en bordure
Surface : 860m²
Commune : 16730 Linars
Département : CHARENTE (16)
Modèle présenté
Modèle : DF16
Surface habitable : 107m²
Pièces : 4
chambres : 3
Construction : NC

