Projet de construction d'une maison 108 m² avec terrain à ANGOULEME (16) Proposé par Maisons Chantal B
Recevez une étude personnalisée
de cette offre
Maison neuve avec terrain Angoulême (16000)
dès 290 000 €A ANGOULEME sur un terrain de 860 m², MAISONS CHANTAL B vous propose de réaliser cette maison neuve Maison 3 chambres avec un grand garage pour 2 voitures.
Style et confort au rendez vous..
Découvrez cette belle maison de caractère affirmé moderne et authentique.
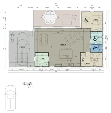
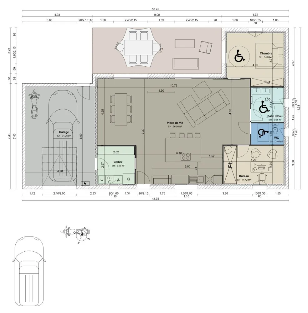
Elle offre 3 chambres spacieuses, une très grande pièce de vie de 58 m² et un garage généreux, parfait pour vos véhicules, le rangement ou un futur atelier.
Une maison unique, pratique et pleine de charme, pensée pour votre confort et votre qualité de vie avec une climatisation reversible.
Idéal pour les amateurs de belles finitions et d'espace.!!
MAISONS CHANTAL B vous propose les prestations suivantes :
- Plan sur-mesure et personnalisé de 2 à 5 chambres
- Mode de chauffage au choix
- Grands choix d'équipements et de prestations
- Matériaux de qualité selon les normes en vigueur
- Accompagnement dans le choix et l’acquisition du terrain
- Construction conforme à la nouvelle RE 2020
Informations du terrain : Situé proche du boulevard de Bretagne
Parcelle de 860 m²
Demandez une étude gratuite et personnalisée de votre projet de construction !
Contactez David FORT au 06 72 60 33 16 (Maisons Chantal B - Maison Expo Gond-Pontouvre).
Prix avec assurance dommages-ouvrage comprise, terrain non viabilisé, assainissement non compris, VRD non compris, adaptation non comprise, frais de notaire non compris, taxes non comprises, frais divers non compris. Terrain sélectionné et vu pour vous sous réserve de disponibilité et au prix indiqué par notre partenaire foncier. Conditions et visuels non contractuels.
Cette annonce a été créée et diffusée avec le logiciel VITAHOME.
- 108m²
- 2 chambres
Réf. TMDF015490DCEB0B51
Informations sur le terrain
Situé proche du boulevard de Bretagne
Parcelle de 860 m²
Surface : 860m²
Commune : 16000 Angoulême
Département : CHARENTE (16)
Modèle présenté
Modèle : DF11
Surface habitable : 108m²
Pièces : 4
chambres : 2
Garage : 35m²
Construction : NC

