Construire sa maison 4 chambres 110m² sur un terrain de 856m² en ALPES-DE-HAUTE-PROVENCE (04) | TMOL00846992F60EB2

Maison 110 m² avec terrain à LE BRUSQUET (04) Proposé par Villas Prisme

Maison neuve avec terrain 04036 (04420)

dès  266 516 €

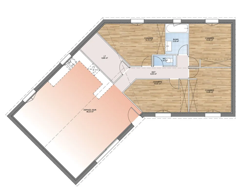
A LE BRUSQUET sur un terrain de 856 m², VILLAS PRISME vous propose de réaliser votre projet de construction de maison individuelle d'une surface de 110 m² habitables avec 4 chambres.

Avec VILLAS PRISME, vous pouvez personnaliser votre projet de maison sur mesure :
- Plan et distribution
- Système de chauffage au choix
- Prestations et équipements selon vos souhaits : carrelages, faïence, menuiseries, salles de bains...
- Mode constructif et matériaux selon les normes en vigueur

Informations du terrain : terrain plat viabilisé

Demandez une étude gratuite et personnalisée de votre projet de construction !

Contactez Olivier LAMY au 06 35 83 71 83 (Villas Prisme - Agence de Manosque).

Prix avec assurance dommages-ouvrage comprise, hors VRD, terrain viabilisé, frais de notaire non compris, frais divers non compris. Terrain sélectionné et vu pour vous sous réserve de disponibilité et au prix indiqué par notre partenaire foncier. Non mandaté pour la vente du terrain. Visuels non contractuels.
Cette annonce a été créée et diffusée avec le logiciel VITAHOME.

 

  • 110m²
  • 4 chambres
Réf. TMOL00846992F60EB2

Informations sur le terrain

 

terrain plat viabilisé
Surface : 856m²
Commune : 04420 04036
Département : ALPES-DE-HAUTE-PROVENCE (04)

Modèle présenté

 

Modèle : LEA 4CH110
Surface habitable : 110m²
Pièces : 6
chambres : 4
Toiture : moderne
Construction : NC

 

 

Contactez Villas Prisme
pour cette maison avec terrain

 

* Champ obligatoire

 


Consultez tous nos conseils
pour réaliser votre projet de construction !

Pour tout savoir sur la construction de maisons individuelles, choisir son constructeur, concevoir sa future maison neuve, sélectionner son terrain à bâtir ou bien financer son projet de construction, consultez tous nos précieux conseils via notre guide de la construction

Consultez notre guide de la construction

 

 

Retour en haut de page
Devis pour mon projet