Modèle de maison MODELE 30 Proposé par Prestige Réalisation
Prix sur consultation
Recevez une étude personnalisée
de cette maison
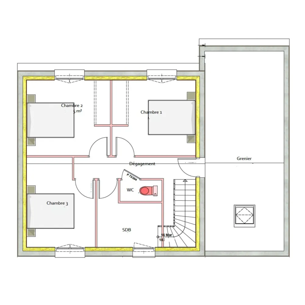
- 85 m²
- 3 chambres
Réf. modele-30-1
Caractéristiques du modèle MODELE 30
| MODELE 30-3CH84 | 4 Pièces | 3 chambres | 84.7 m² | Prix NC |

