Modèle de maison ADELE T6 Proposé par Maisons SOCOREN
Prix sur consultation
Recevez une étude personnalisée
de cette maison
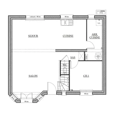
garage en option
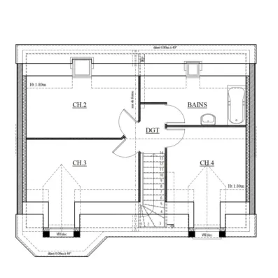
- 99 m²
- 4 chambres
Réf. adele-t6-4
Caractéristiques du modèle ADELE T6
| ADELE T6-4CH98 | 5 Pièces | 4 chambres | 98.51 m² | Prix NC |

