Modèle de maison L'EGLANTINE Proposé par Maisons Françaises du Poitou
dès 220 500 €
Recevez une étude personnalisée
de cette maison
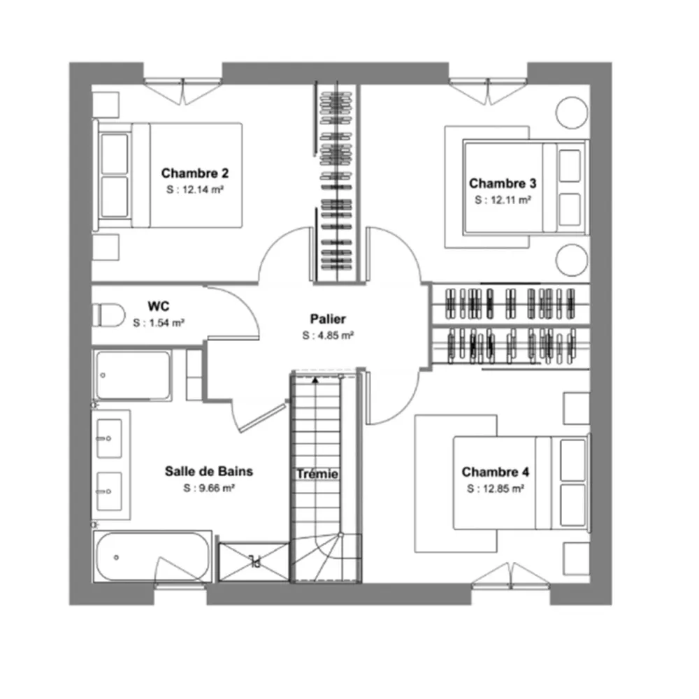
- 118 m²
- 4 chambres
Réf. l-eglantine
Caractéristiques du modèle L'EGLANTINE
| L'EGLANTINE-4CH118 | 5 Pièces | 4 chambres | 118 m² |
dès 220 500 € |

