Modèle de maison MONTSOURIE Proposé par Maisons Clairval
Recevez une étude personnalisée
de cette maison
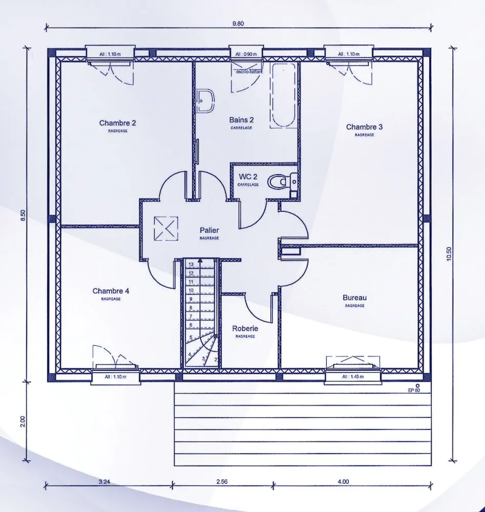
Le modèle Montsourie est une maison à étage de 139 m2, d’architecture traditionnelle. Ses volumes compacts en font une maison adaptable à tous les terrains, et néanmoins originale, avec l’avancée de la façade avant et son porche couvert, qui lui donnent un charme certain. Les plans de ce modèle sont modulables et privilégient le confort de tous les habitants : 4 chambres et un bureau répartis sur les deux niveaux (un chambre au rez-de-chaussée et un bureau en complément des trois autres à l’étage), permettent des aménagements variés et successifs. Deux salles de bains, sont prévues, une à chaque étage. Au rez-de-chaussée, une véritable entrée dessert toutes les pièces : un vaste séjour en L, très lumineux, (32 m2), une grande cuisine séparée et dinatoire (12 m2), la chambre et la salle de bain, ainsi que les wc indépendants.
- 139 m²
- 4 chambres
Caractéristiques du modèle MONTSOURIE
| MONTSOURIE-4CH139 | 6 Pièces | 4 chambres | 139.05 m² | Prix NC |

