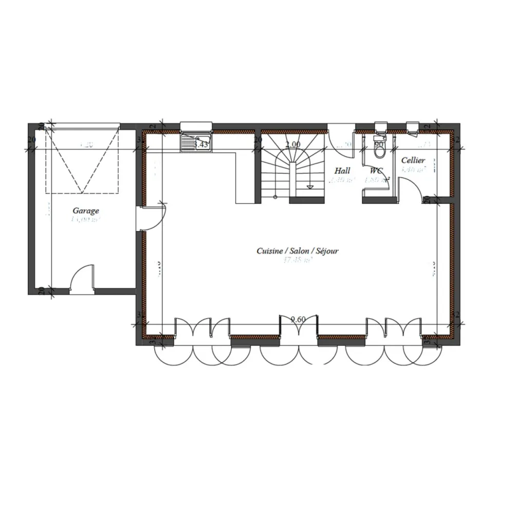
Modèle de maison ROMA 110 Proposé par LES VILLAS VETENA
Prix sur consultation
Recevez une étude personnalisée
de cette maison
- 100 m²
- 3 chambres
Réf. roma-110-1
Caractéristiques du modèle ROMA 110
| ROMA-4CH110 | 4 Pièces | 3 chambres | 100 m² | Prix NC |

