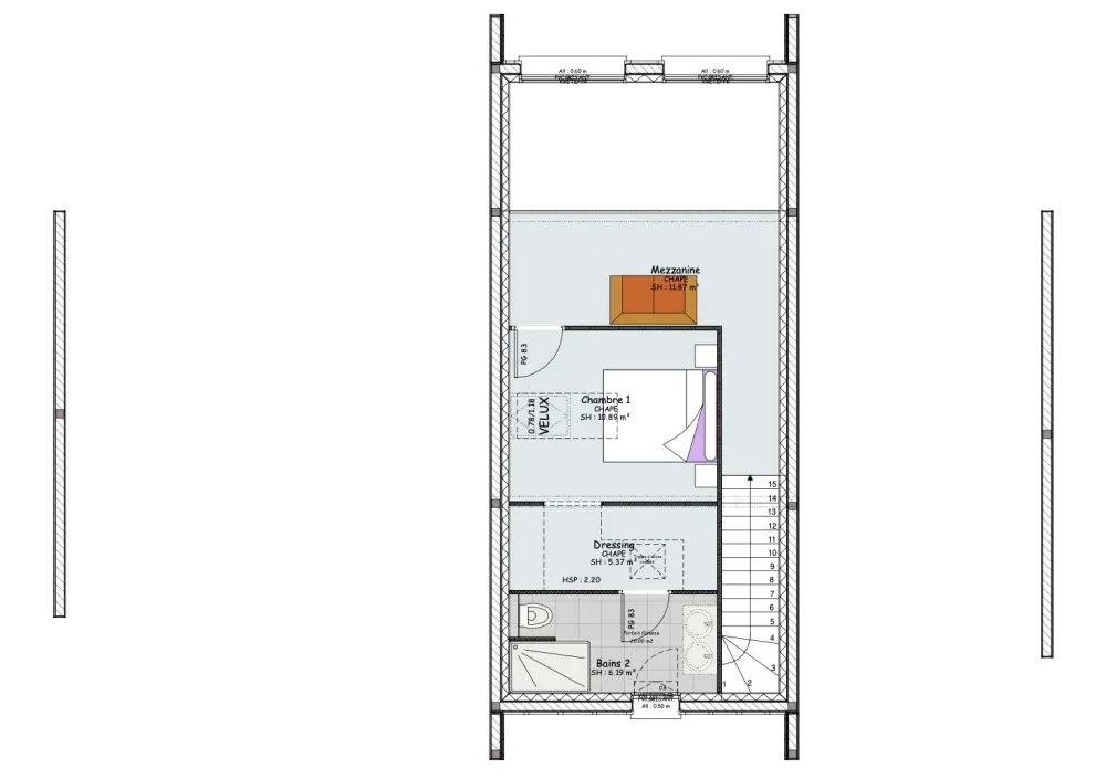
Modèle de maison MONTANA Proposé par LES DEMEURES REGIONALES
dès 350 000 €
Recevez une étude personnalisée
de cette maison
- 156 m²
- 3 chambres
Réf. montana
Caractéristiques du modèle MONTANA
| MONTANA-3CH156 | 6 Pièces | 3 chambres | 156 m² |
dès 350 000 € |

