Projet de construction d'une maison 90 m² avec terrain à NEGREPELISSE (82) au prix de 0€. Proposé par Villas et Maisons de France
Recevez une étude personnalisée
de cette offre
Maison neuve avec terrain Nègrepelisse (82800)
dès 194 000 €D'un design épuré et contemporain, cette maison reste modifiable et personnalisable comme tous les modèles Villas et Maisons de France
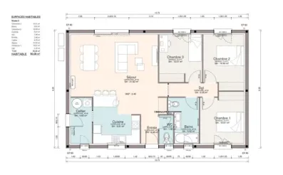
Dans sa version catalogue, ce modèle Comète dispose de 90m² de surface habitable. Fonctionnel, son aménagement intérieur comprend un coin nuit avec 3 belles chambres comprises entre 10 et 11m² complétées d'une salle de bain de 5.92m². La pièce à vivre, lumineuse, de plus de 40 m², comprend salon et salle à manger. La cuisine ouverte prolonge ce sentiment de confort et prévoit des rangements significatifs dans le cellier accolé.
Avec un process de haute qualité environnementale, nous garantissons la RE 2020, l'étiquette énergie A, la qualité de notre traitement de l’étanchéité à l’air, le tri sélectif et la valorisation des déchets. Dans un cadre verdoyant, très bien exposée et proche des commerces et services, cette parcelle (apportée par notre partenaire foncier sous réserve de disponibilité), d’une superficie de 610 m², peut accueillir, dès aujourd'hui, votre projet de construction.
D'un design épuré et contemporain, cette maison reste modifiable et personnalisable comme tous les modèles Villas et Maisons de France.
Dans sa version catalogue, ce modèle dispose de 90 m² de surface habitable. Fonctionnel, son aménagement intérieur comprend un coin nuit avec 3belles chambres comprises entre 10 et 11m² complétées d'une salle de bain de 5.42m². La pièce à vivre, lumineuse, de près de 40 m², comprend salon et salle à manger. La cuisine ouverte prolonge ce sentiment de confort et prévoit des rangements significatifs dans le cellier accolé.
Certifié Properméa et avec un process de haute qualité environnementale, nous garantissons la RE 2020, l'étiquette énergie A, la qualité de notre traitement de l’étanchéité à l’air, le tri sélectif et la valorisation des déchets. Villas et Maisons de France vous apporte aussi la sécurité du Contrat de Construction de Maison Individuelle (CCMI), en délivrant Garantie de Livraison, Assurance Décennale et Dommages Ouvrage, Garantie de Parfait Achèvement et de Bon Fonctionnement pris en charge par notre propre SAV.
Profitez d'un accompagnement performant pour vos démarches administratives et bénéficiez d'un Espace Client Privilège pour suivre votre construction en images et en temps réel. Choisir un constructeur engagé pour la construction durable, c'est dans l'air du temps ! Contacter Patrick BERDIN au 06 31 26 05 60, spécialiste de la Maison Individuelle avec process de haute qualité environnementale en Occitanie. Villas et Maisons de France vous apporte aussi la sécurité du Contrat de Construction de Maison Individuelle (CCMI), en délivrant Garantie de Livraison, Assurance Décennale et Dommages Ouvrage, Garantie de Parfait Achèvement et de Bon Fonctionnement pris en charge par notre propre SAV.
Profitez d'un accompagnement performant pour vos démarches administratives et bénéficiez d'un Espace Client Privilège pour suivre votre construction en images et en temps réel. Choisir un constructeur engagé pour la construction durable, c'est dans l'air du temps ! Contacter Patrick Berdin au 06 31 26 05 60 spécialiste de la Maison Individuelle avec process de haute qualité environnementale en Occitanie.
Contactez Patrick BERDIN au 06 31 26 05 60 ou au 05 34 48 00 00 (Villas et Maisons de France).
Prix avec assurance dommages-ouvrage comprise, VRD non compris, terrain viabilisé, frais de notaire non compris, frais divers non compris. Terrain sélectionné et vu pour vous sous réserve de disponibilité et au prix indiqué par notre partenaire foncier. Plans contractuels, visuels non contractuels.
Cette annonce a été créée et diffusée avec le logiciel VITAHOME.
- 90m²
- 3 chambres
Réf. TMPB0135263827F319
Informations sur le terrain
Surface : 610m²
Commune : 82800 Nègrepelisse
Département : TARN-ET-GARONNE (82)
Modèle présenté
Modèle : Comète
Surface habitable : 90m²
Pièces : 4
chambres : 3
Construction : NC

