Projet de construction d'une maison 80 m² avec terrain à SABRAN (30) Proposé par LES VILLAS VETENA
Recevez une étude personnalisée
de cette offre
Maison neuve avec terrain Sabran (30200)
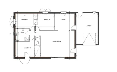
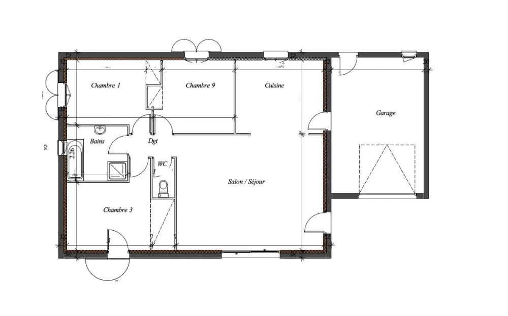
dès 203 420 €A SABRAN sur un terrain de 400 m², LES VILLAS VÉTÉNA vous propose de réaliser cette maison neuve d'une surface de 80 m² habitables avec 3 chambres.
LES VILLAS VÉTÉNA vous propose les prestations suivantes :
- Plan sur-mesure et personnalisé de 2 à 6 chambres
- Mode de chauffage au choix
- Grands choix d'équipements et de prestations
- Matériaux de qualité selon les normes en vigueur
- Accompagnement dans le choix et l’acquisition du terrain
- Construction conforme à la nouvelle RE 2020
Informations du terrain : un cadre paisible de vignes et de bois lointains, à seulement 3 mn de Bagnols sur Cèze
Demandez une étude gratuite et personnalisée de votre projet de construction !
Contactez Sophie BARUCCI au 04 32 75 13 89 ou au 04 32 75 13 89 (LES VILLAS VETENA - Agence de Vedène).
Prix avec assurance dommages-ouvrage comprise, VRD non compris, terrain viabilisé, adaptation non comprise, assainissement compris, frais de notaire non compris, taxes non comprises, frais divers non compris. Terrain sélectionné et vu pour vous sous réserve de disponibilité et au prix indiqué par notre partenaire foncier. Conditions et visuels non contractuels.
Cette annonce a été créée et diffusée avec le logiciel VITAHOME.
- 80m²
- 3 chambres
Réf. TMSB046127E14E334C
Informations sur le terrain
un cadre paisible de vignes et de bois lointains, à seulement 3 mn de Bagnols sur Cèze
Surface : 400m²
Commune : 30200 Sabran
Département : GARD (30)
Modèle présenté
Modèle : MODENA-3CH80
Surface habitable : 80m²
Pièces : 4
chambres : 3
Construction : NC

