Projet de construction d'une maison 130.04 m² avec terrain à LANGLADE (30) Proposé par Bâtisseurs Héraultais
Recevez une étude personnalisée
de cette offre
Maison neuve avec terrain Langlade (30980)
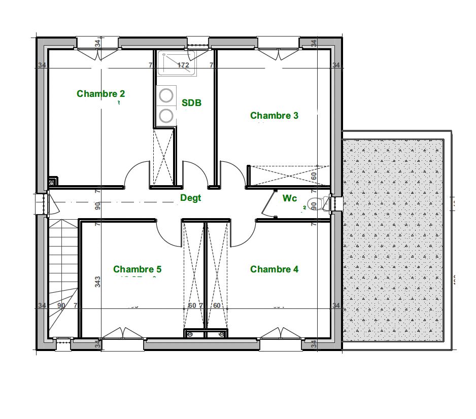
dès 343 000 €A LANGLADE sur un terrain de 700 m², nous vous proposons de réaliser le modèle Alpille T6 de 130.04 m² habitables.
LES BÂTISSEURS HÉRAULTAIS vous propose les prestations suivantes :
- Plan sur-mesure et personnalisé de 2 à 6 chambres
- Mode de chauffage au choix
- Grands choix d'équipements et de prestations
- Matériaux de qualité selon les normes en vigueur
- Accompagnement dans le choix et l’acquisition du terrain
- Construction conforme à la nouvelle RE 2020
Informations du terrain : Proche centre village et commodités
Terrain intimiste en Vaunage
Exposition sud au calme dans environnement nature
Vue dégagée
Demandez une étude gratuite et personnalisée de votre projet de construction !
Contactez Anne au 06 26 03 29 53 (Bâtisseurs Héraultais - Agence de Jacou).
Prix avec assurance dommages-ouvrage comprise, hors VRD, terrain viabilisé, frais de notaire non compris, frais divers non compris. Terrain sélectionné et vu pour vous sous réserve de disponibilité et au prix indiqué par notre partenaire foncier. Conditions et visuels non contractuels.
Cette annonce a été créée et diffusée avec le logiciel VITAHOME.
- 130.04m²
- 5 chambres
Réf. TMAB02665418D71595
Informations sur le terrain
PROCHE CENTRE VILLAGE
TERRAIN INTIMISTE
EXPOSITION SUD
VIABILISE ET PISCINABLE
Surface : 700m²
Commune : 30980 Langlade
Département : GARD (30)
Modèle présenté
Modèle : ALPILLE-5CH130
Surface habitable : 130.04m²
Pièces : 6
chambres : 5
Garage : 18m²
Construction : NC

