Projet de construction d'une maison 110 m² avec terrain à QUIMPERLE (29) Proposé par Maisons i 29
Recevez une étude personnalisée
de cette offre
Maison neuve avec terrain Quimperlé (29300)
dès 321 349 €Laissez-vous séduire par ce projet de construction haut de gamme, niché dans un environnement calme et verdoyant à Quimperlé, offrant un cadre de vie aussi agréable que privilégié.
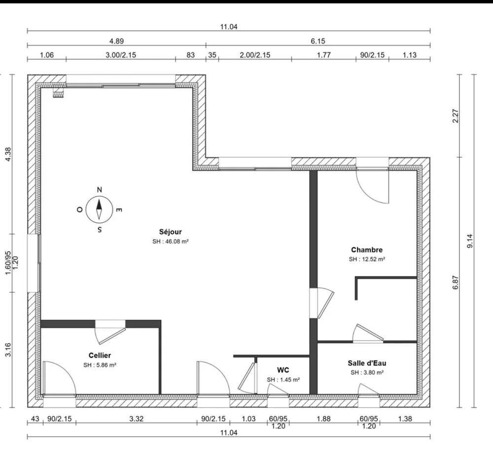
Conçue par Maisons I29 sur un terrain de 481 m² idéalement exposé, cette maison contemporaine de 110 m² habitables allie élégance, confort et prestations de qualité.
La pièce de vie de 46 m², ouverte sur l’extérieur, se distingue par ses volumes généreux et sa luminosité naturelle, créant un espace de vie chaleureux et résolument moderne.
Les 4 chambres, soigneusement agencées, sont pensées pour garantir confort et intimité à toute la famille.
Ce projet a été entièrement imaginé sur mesure et reste entièrement personnalisable : agencement, surfaces, prestations… chaque détail peut être adapté pour correspondre parfaitement à votre mode de vie et à vos envies.
La maison bénéficie des prestations de la gamme « SIGNATURE », incluant notamment :
• Un système de chauffage air/eau (plancher chauffant), performant et économique
• Une salle de bains entièrement équipée aux finitions soignées :
- meuble simple vasque de 90 cm ou double vasque de 120 cm, ainsi qu’un miroir antibuée à LED
- receveur de douche extra-plat de 90 x 120 cm avec robinetterie, ciel de pluie et douchette (GROHE)
- faïences 90 x 30 dans l’espace douche, fournies et posées
• Des menuiseries tout aluminium avec fenêtres oscillo-battantes (K LINE)
• Des revêtements de sol et peintures inclus, sélectionnables dans notre showroom
Une réalisation clé en main, aux prestations abouties, prête à accueillir votre futur projet de vie.
Prix du projet terrain + maison : 321 349 €
• Terrain de 481 m² : 84 900 €
• Maison : 236 449 €
Contactez Adelin GELARD au 02 98 11 79 46 (Maisons i 29 - Agence de Pluguffan).
Infos complémentaires :
- Frais de notaire, raccordements, assainissement, taxes et frais annexes non incluses.
- Terrain sous réserve de disponibilité. Conditions non contractuelles.
Contactez nous pour une étude gratuite et personnalisée de votre futur projet de vie !
Cette annonce a été créée et diffusée avec le logiciel VITAHOME.
- 110m²
- 4 chambres
Réf. TMAG0207758BA41E14
Informations sur le terrain
Surface : 481m²
Commune : 29300 Quimperlé
Département : FINISTERE (29)
Modèle présenté
Modèle : INDISSOCIABLE
Surface habitable : 110m²
Pièces : 5
chambres : 4
Construction : NC

