Construire sa maison 3 chambres 135m² sur un terrain de 596m² en FINISTERE (29) | TMAD020775EEC2863B

Projet de construction d'une maison 135 m² avec terrain à CONFORT-MEILARS (29) Proposé par Maisons i 29

Maison neuve avec terrain Confort-Meilars (29790)

dès  332 933 €

Et si votre future maison prenait vie ici ?
Ce projet s’intègre parfaitement dans son environnement naturel, avec une architecture traditionnelle. Idéal pour une première acquisition ou un projet familial, il combine tranquillité, modernité et qualité de vie.
Sur un terrain de 596m², idéalement orienté, laissez-vous séduire par cette maison de 135m² alliant confort, luminosité et praticité au quotidien.
Construisez la maison qui vous ressemble grâce aux différentes gammes de finitions proposées par Maisons i.
Prix du projet terrain + maison : 310427€, comprenant le terrain de 596m² au prix de 22 506€ et la construction de la maison selon les prestations décrites ci-dessus. D’autres terrains sont également disponibles. N’hésitez pas à contacter Maisons i pour plus d’informations.

Contactez Alexandre DEMADE PELLORCE au 02 98 11 79 46 (Maisons i 29 - Agence de Pluguffan).

Frais de notaire, assainissement, taxes et frais annexes non comprises. Terrain sélectionné et vu pour vous sous réserve de disponibilité et au prix indiqué par notre partenaire foncier. Conditions et visuels non contractuels.
Cette annonce a été créée et diffusée avec le logiciel VITAHOME.

 

  • 135m²
  • 3 chambres
Réf. TMAD020775EEC2863B

Informations sur le terrain

 

Terrain à vendre en lotissement, viabilisé (eau, électricité, tout-à-l’égout). Il est situé dans un quartier calme et agréable, des écoles et des transports. Le terrain est plat, bien exposé, et prêt à accueillir votre future maison.
environnement sécurisé, cadre propre, bonne exposition au soleil, proximité des services, terrain déjà raccordé aux réseaux.
Surface : 596m²
Commune : 29790 Confort-Meilars
Département : FINISTERE (29)

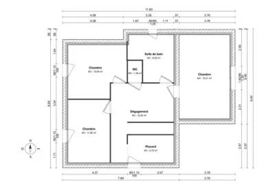
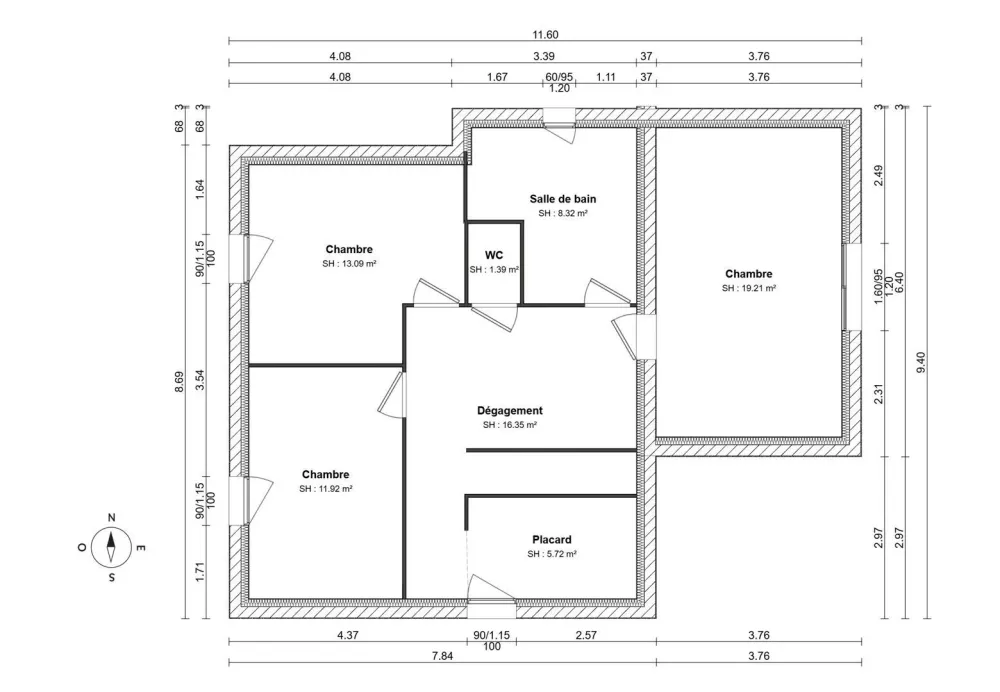
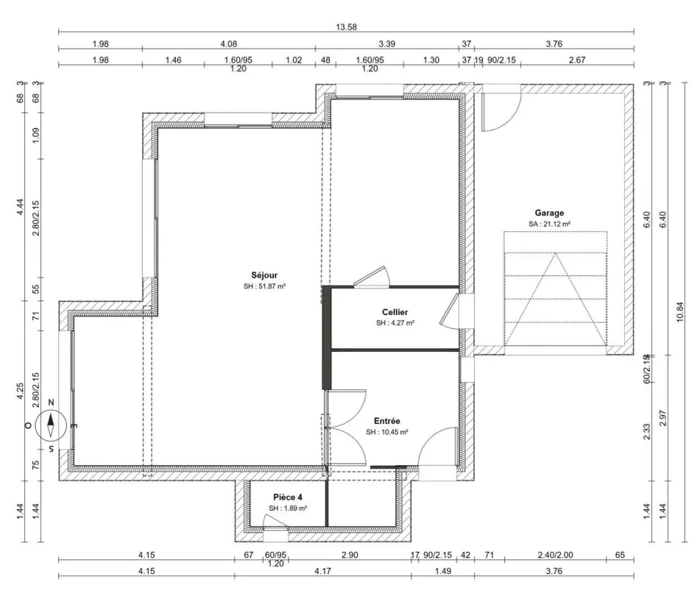
Modèle présenté

 

Modèle : Isoria
Surface habitable : 135m²
Pièces : 10
chambres : 3
Garage : 21m²
Construction : NC

 

 

Contactez Maisons i 29
pour cette maison avec terrain

 

* Champ obligatoire

 


Voici d'autres offres sur Confort-Meilars (29) et ses environs

Consultez tous nos conseils
pour réaliser votre projet de construction !

Pour tout savoir sur la construction de maisons individuelles, choisir son constructeur, concevoir sa future maison neuve, sélectionner son terrain à bâtir ou bien financer son projet de construction, consultez tous nos précieux conseils via notre guide de la construction

Consultez notre guide de la construction

 

 

Retour en haut de page
Devis pour mon projet