Projet de construction d'une maison 76 m² avec terrain à CLOHARS-CARNOET (29) Proposé par Maisons i 29
Recevez une étude personnalisée
de cette offre
Maison neuve avec terrain Clohars-Carnoët (29360)
dès 276 317 €Situé à quelques kilomètres des plages, dans un lotissement proche du centre-bourg, ce projet de construction vous offre un cadre idéal pour concrétiser votre projet de vie.
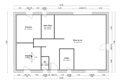
Implantée sur un terrain de 410 m² bénéficiant d’une belle orientation, cette maison de plain-pied de 76 m² a été pensée pour offrir un cadre de vie confortable et fonctionnel au quotidien.
Ce projet a été imaginé avec nos clients et conçu sur mesure. Il est entièrement personnalisable, que ce soit en termes de surface, d’agencement ou de prestations, afin de s’adapter parfaitement à vos envies et à votre mode de vie.
La maison bénéficie des prestations de la gamme « ESSENTIELLE », comprenant notamment :
• Un système de chauffage air/air avec climatisation et radiateurs dans les chambres
• Une salle de bains équipée issue de la gamme « Essentielle » :
- meuble simple vasque de 80 cm avec son miroir
- une baignoire et/ou un receveur de douche extra-plat de 80 x 100 cm avec robinetterie et douchette de chez Grohe
- faïences fournies et posées
• Des menuiseries PVC et aluminium avec fenêtres oscillo-battantes (K-Line)
• Carrelage fourni et posé dans la pièce de vie, sol stratifié fourni (pose non incluse) dans les chambres
• Peinture blanche (2 couches) fournie, pose non incluse, pour l’ensemble de la maison
Venez visiter notre showroom pour découvrir nos différents choix de coloris ainsi que nos finitions.
Prix du projet terrain + maison : 276 317 €
• Terrain de 410 m² : 102 200 €
• Maison : 174 117 €
Contactez Adelin GELARD au 02 98 11 79 46 (Maisons i 29 - Agence de Pluguffan).
Infos pratiques : frais de notaire, raccordements, assainissement, taxes et frais annexes non inclus. Terrain sous réserve de disponibilité. Photos non contractuelles.
Cette annonce a été créée et diffusée avec le logiciel VITAHOME.
- 76m²
- 2 chambres
Réf. TMAG0207753A6119E9
Informations sur le terrain
PROCHE MER, commerce de proximité
Surface : 410m²
Commune : 29360 Clohars-Carnoët
Département : FINISTERE (29)
Modèle présenté
Modèle : IMA
Surface habitable : 76m²
Pièces : 3
chambres : 2
Construction : NC

