Projet de construction d'une maison 75 m² avec terrain à CONFORT-MEILARS (29) Proposé par Maisons i 29
Recevez une étude personnalisée
de cette offre
Maison neuve avec terrain Confort-Meilars (29790)
dès 191 140 €Découvrez ce superbe projet de construction situé au cœur d’un environnement paisible et verdoyant, au sein d’un charmant lotissement situé dans la zone bâtiment de France à Confort-Meilars garantissant un cadre de vie agréable.
Sur un terrain de 555 m², idéalement orienté, laissez-vous séduire par cette maison contemporaine de 75 m² alliant confort, luminosité et praticité au quotidien.
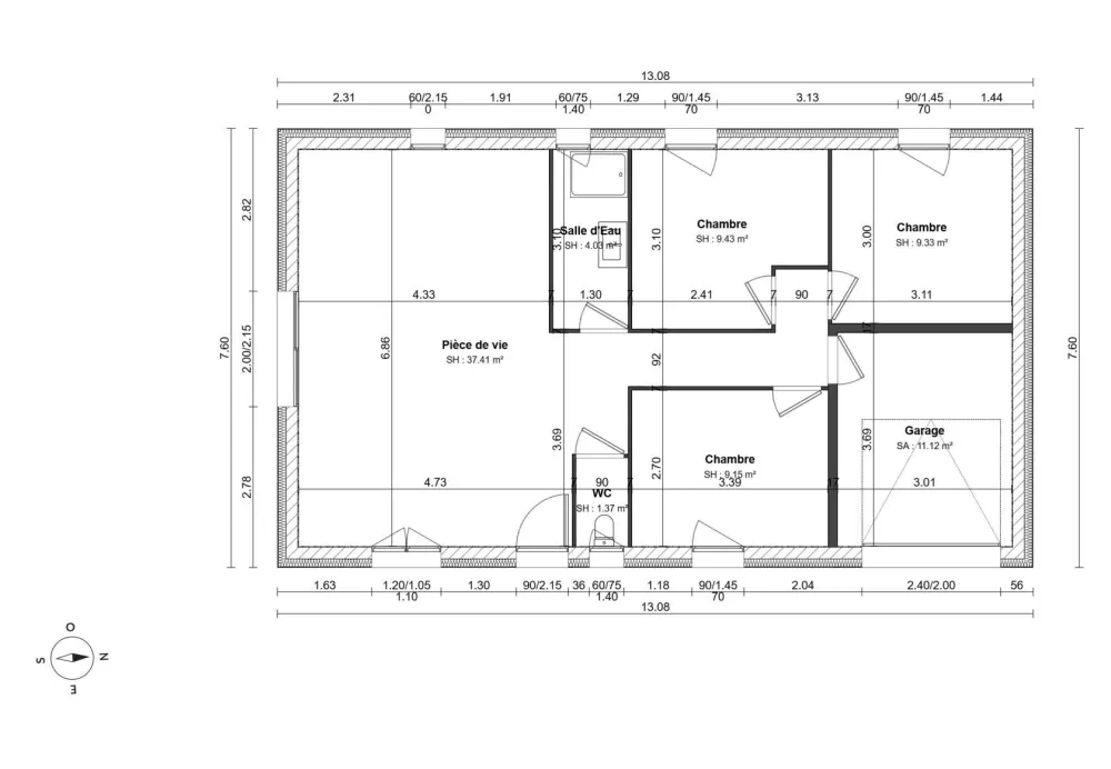
Son espace de vie de 34 m², baigné de lumière grâce à ses ouvertures, offre une atmosphère chaleureuse et conviviale où il fait bon de se retrouver en famille. La partie nuit comprend trois chambres bien agencées, parfaite pour accueillir petits et grands. Un garage de 12 m² vient compléter l’ensemble, apportant un espace de rangement et de stationnement appréciable.
Ce projet s’intègre parfaitement dans son environnement naturel, avec une architecture traditionnelle. Idéal pour une première acquisition ou un projet familial, il combine tranquillité, modernité et qualité de vie.
Le plan de cette maison a été conçu sur mesure avec nos clients, à l’image de tous nos projets Maisons I, afin de s’adapter parfaitement à votre mode de vie.
Elle bénéficie des finitions de la gamme “Essentielle”, incluant un système de chauffage AIR/AIR performant, une salle de bain entièrement équipée (carrelage, faïence et meubles assortis), ainsi que les revêtements de sols et la peinture fournis, pour une maison clé en main, prête à accueillir votre famille.
Prix du projet terrain + maison : 165 221€, comprenant le terrain de 555 m² au prix de 25 919 € et la construction de la maison selon les prestations décrites ci-dessus. D’autres terrains sont également appelés Maisons i pour plus d’information. D’autres terrains sont également disponible appelés Maisons i pour plus d’information.
Contactez Stella LEMAT au 02 98 11 79 46 (Maisons i 29 - Agence de Pluguffan).
Frais de notaire, assainissement individuelle, taxes et frais annexes non comprises. Terrain sélectionné et vu pour vous sous réserve de disponibilité et au prix indiqué par notre partenaire foncier. Conditions et visuels non contractuels.
Cette annonce a été créée et diffusée avec le logiciel VITAHOME.
- 75m²
- 3 chambres
Réf. TMSL0207753A5FF5A1
Informations sur le terrain
Terrain à vendre en lotissement, viabilisé (eau, électricité, tout-à-l’égout). Il est situé dans un quartier calme et agréable, des écoles et des transports. Le terrain est plat, bien exposé, et prêt à accueillir votre future maison.
environnement sécurisé, cadre propre, bonne exposition au soleil, proximité des services, terrain déjà raccordé aux réseaux.
Surface : 555m²
Commune : 29790 Confort-Meilars
Département : FINISTERE (29)
Modèle présenté
Modèle : Inéa
Surface habitable : 75m²
Pièces : 6
chambres : 3
Garage : 12m²
Construction : NC

