Projet de construction d'une maison 66.28 m² avec terrain à COGNAT-LYONNE (03) Proposé par Maisons Françaises Montluçon
Recevez une étude personnalisée
de cette offre
Maison neuve avec terrain 03080 (03110)
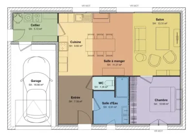
dès 191 428 €A COGNAT-LYONNE sur un terrain de 914 m², Maisons Françaises Montluçon vous propose de réaliser cette maison neuve d'une surface de 66.28 m² habitables avec 1 chambres.
Maisons Françaises Montluçon vous propose les prestations suivantes :
- Plan sur-mesure et personnalisé de 2 à 6 chambres
- Mode de chauffage au choix
- Grands choix d'équipements et de prestations
- Matériaux de qualité selon les normes en vigueur
- Accompagnement dans le choix et l’acquisition du terrain
- Construction conforme à la nouvelle RE 2020
Informations du terrain : un pôle multiservices accueillant infirmière, salon de coiffure, kiné, bureau postal, maison d’assistantes maternelles, supérette à proximité immédiate
un environnement préservé, calme et champêtre
Demandez une étude gratuite et personnalisée de votre projet de construction !
Contactez Anne RONCHAUD au 06 15 05 28 92 ou au 04 70 05 19 39 (Maisons Françaises Montluçon - Agence de Domerat).
Prix à partir de. Avec assurance dommages-ouvrage comprise, hors VRD, terrain viabilisé, frais de notaire non compris, frais divers non compris. Terrain sélectionné et vu pour vous sous réserve de disponibilité et au prix indiqué par notre partenaire foncier. Conditions et visuels non contractuels.
Cette annonce a été créée et diffusée avec le logiciel VITAHOME.
- 66.28m²
- 1 chambres
Réf. TMAR02718984208BBF
Informations sur le terrain
un pôle multiservices accueillant infirmière, salon de coiffure, kiné, bureau postal, maison d’assistantes maternelles, supérette à proximité immédiate
un environnement préservé, calme et champêtre
Surface : 914m²
Commune : 03110 03080
Département : ALLIER (03)
Modèle présenté
Modèle : Model 11 Maison évolutive
Surface habitable : 66.28m²
Pièces : 2
chambres : 1
Garage : 16.66m²
Construction : NC

