Projet de construction d'une maison 100 m² avec terrain à FARGES (01) Proposé par DEMEURES RHÔNE-ALPES
Recevez une étude personnalisée
de cette offre
Maison neuve avec terrain 01158 (01550)
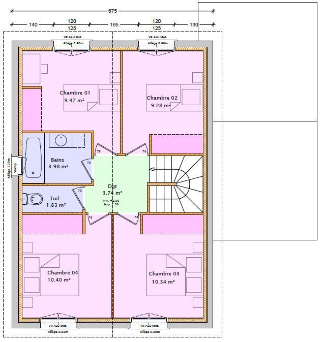
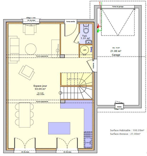
dès 499 000 €A FARGES sur un terrain de 350 m², DEMEURES RHÔNE-ALPES vous propose de réaliser cette maison neuve d'une surface de 100 m² habitables avec 4 chambres.
lotissement d'une vingtaine de terrain et maisons (très proche mairie)
DEMEURES RHÔNE-ALPES vous propose les prestations suivantes :
- Plan sur-mesure et personnalisé de 3 à 4 chambres
- Mode de chauffage Pompe à chaleur Air/Eau OU Air/Air
- Grands choix d'équipements et de prestations
- Matériaux de qualité selon les normes en vigueur RE2020
- Accompagnement dans le choix et l’acquisition du terrain
- Construction conforme à la nouvelle RE 2020
Demandez une étude gratuite et personnalisée de votre projet de construction !
Contactez Grégory FRACCARO au 06 29 58 52 28 (DEMEURES RHÔNE-ALPES - Agence des deux Savoie).
Prix avec assurance dommages-ouvrage comprise, hors VRD, terrain viabilisé, frais de notaire non compris, frais divers non compris. Terrain sélectionné et vu pour vous sous réserve de disponibilité et au prix indiqué par notre partenaire foncier. Conditions et visuels non contractuels.
Cette annonce a été créée et diffusée avec le logiciel VITAHOME.
- 100m²
- 4 chambres
Réf. TMSR0228567785C518
Informations sur le terrain
Surface : 350m²
Commune : 01550 01158
Département : AIN (01)
Modèle présenté
Modèle : FARGE ACACIA 1
Surface habitable : 100m²
Pièces : 5
chambres : 4
Garage : 21m²
Construction : NC

